We’d like to remind Forumites to please avoid political debate on the Forum.
This is to keep it a safe and useful space for MoneySaving discussions. Threads that are – or become – political in nature may be removed in line with the Forum’s rules. Thank you for your understanding.
📨 Have you signed up to the Forum's new Email Digest yet? Get a selection of trending threads sent straight to your inbox daily, weekly or monthly!
The Forum now has a brand new text editor, adding a bunch of handy features to use when creating posts. Read more in our how-to guide
Add a downstairs WC if possible.
Comments
-
I don't think he would go for that option but when he gets some prices for the work needed we we take it from there.GDB2222 said:Equity release mortgages are an expensive way to raise money, but that’s a possible solution to financing the work required. Or, simply all family members dig into their pockets a bit if Dad is only a little bit short of what’s needed.
Thanks.1 -
One other question. Can you put a large porch on the front of the house, with room for a toilet in it? The advantage is that you are adding to the floor area and value of the house. Rearranging the existing interior space costs money, and it may even reduce the value of the house.No reliance should be placed on the above! Absolutely none, do you hear?1
-
That's what I was going to suggest.GDB2222 said:One other question. Can you put a large porch on the front of the house, with room for a toilet in it? The advantage is that you are adding to the floor area and value of the house. Rearranging the existing interior space costs money, and it may even reduce the value of the house.
Also, ask the builder for suggestions.0 -
I don't think that's possible.thegreenone said:
That's what I was going to suggest.GDB2222 said:One other question. Can you put a large porch on the front of the house, with room for a toilet in it? The advantage is that you are adding to the floor area and value of the house. Rearranging the existing interior space costs money, and it may even reduce the value of the house.
Also, ask the builder for suggestions.
I didn't think you were allowed to build extension's on the front of any house's. In my street there have been 30 odd planning apps and none have been at the front, only side or wrap around.
Other issues is front of house is 4 m from SVP so that would have to run on the outside and not sure if there would be fall on a long run and also would have to run water pipes that are about the same distance.
I know if you throw enough money then anythings possible.
0 -
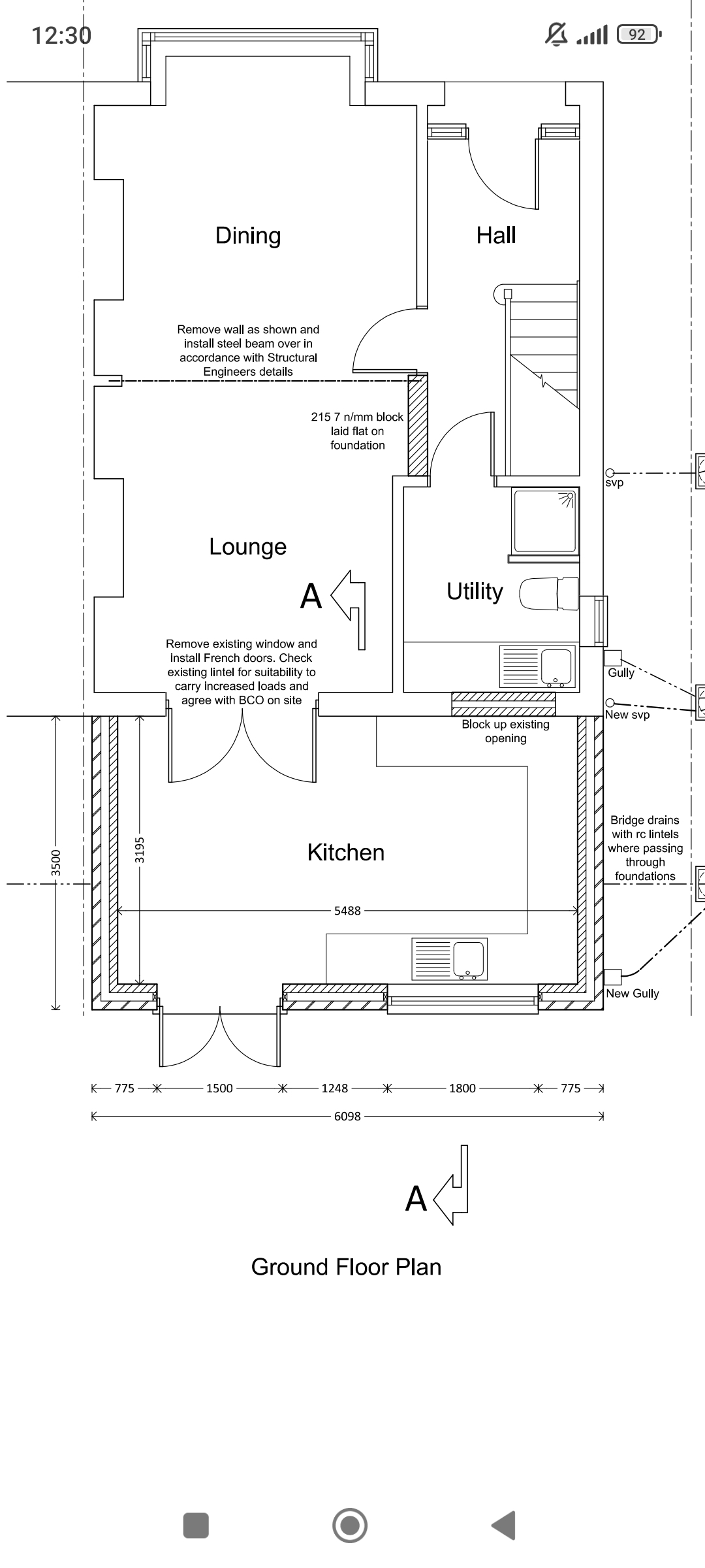
Hera are some plans from a similar layout as FIL.
Original plan has door but on his there is a window and plans for extension (not FIL) show it being turned into utility room with toilet and shower.
0 -
There isn't a hope of getting that for £12KMake £2026 in 2026
Prolific £177.46, TCB £10.90, Everup £27.79, Roadkill £1.17
Total £217.32 10.7%Make £2025 in 2025 Total £2241.23/£2025 110.7%
Prolific £1062.50, Octopoints £6.64, TCB £492.05, Tesco Clubcard challenges £89.90, Misc Sales £321, Airtime £70, Shopmium £53.06, Everup £106.08, Zopa CB £30, Misc survey £10
Make £2024 in 2024 Total £1410/£2024 70%Make £2023 in 2023 Total: £2606.33/£2023 128.8%0 -
Speak to his GP about a referral to Occupational Therapy for an assessment or see if you can self refer to OT at your local authority. The OT will assess his functional needs and suggest/ provide equipment where applicable, and if they feel it's needed can recommend adaptations such as downstairs toilet and/or bathroom etc. Funding for the adaptations would be via disabled facilities grant (DFG) and he may need to contribute based on the means testing aspect. Nothing to lose and his long term needs will be considered. All the best3
-
-
Thanks.GDB2222 said:
I did say that I would post up some plans of FIL neighbours property that is the same layout as his with the before layout and the plans for after loo like.
It was mentioned in my last post the plan is not for my FIL and in the OP that he is after a downstairs WC and not an extension.0
Confirm your email address to Create Threads and Reply
Categories
- All Categories
- 354.2K Banking & Borrowing
- 254.3K Reduce Debt & Boost Income
- 455.3K Spending & Discounts
- 247.2K Work, Benefits & Business
- 603.8K Mortgages, Homes & Bills
- 178.4K Life & Family
- 261.3K Travel & Transport
- 1.5M Hobbies & Leisure
- 16.1K Discuss & Feedback
- 37.7K Read-Only Boards
