We’d like to remind Forumites to please avoid political debate on the Forum.
This is to keep it a safe and useful space for MoneySaving discussions. Threads that are – or become – political in nature may be removed in line with the Forum’s rules. Thank you for your understanding.
PLEASE READ BEFORE POSTING: Hello Forumites! In order to help keep the Forum a useful, safe and friendly place for our users, discussions around non-MoneySaving matters are not permitted per the Forum rules. While we understand that mentioning house prices may sometimes be relevant to a user's specific MoneySaving situation, we ask that you please avoid veering into broad, general debates about the market, the economy and politics, as these can unfortunately lead to abusive or hateful behaviour. Threads that are found to have derailed into wider discussions may be removed. Users who repeatedly disregard this may have their Forum account banned. Please also avoid posting personally identifiable information, including links to your own online property listing which may reveal your address. Thank you for your understanding.
📨 Have you signed up to the Forum's new Email Digest yet? Get a selection of trending threads sent straight to your inbox daily, weekly or monthly!
The Forum now has a brand new text editor, adding a bunch of handy features to use when creating posts. Read more in our how-to guide
New build layout issue found one year after purchase
Comments
-
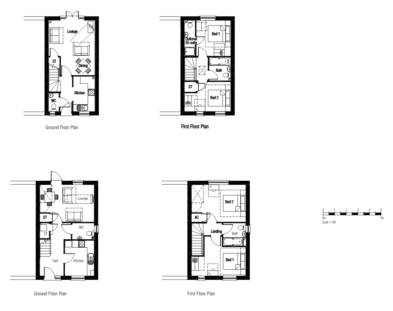
OP: you say your house was incorrectly marked as shared ownership on the plan. Are the houses identical other than the en-suite? In the area where I live, the houses are different as there are extra minimum space rules that apply to affordable housing, and the private houses are so small that they don't conform to this! As a result the affordable houses are actually slightly bigger than the private ones. For example a two bedroom terrace for private purchase might only be four metres wide. This means the kitchen is only about 1.8m wide, and so there is no room for a door, so it is open to the hallway. With an affordable two bed terrace, the house must be ~ 70cm wider. The kitchen is much more nicely proportioned and has a proper door to the hallway. On the other hand, private houses have French doors to the garden, whereas affordable ones have a single door and window.Interestingly, the plans also show an en-suite in one bedroom, but marked as "optional". Could it be that your house just didn't have the optional en-suite installed, rather than being marked as an affordable home? Or otherwise, is the house different in any other ways? Maybe you got a slightly bigger house. I guess the plan will tell you this if you obtain it. You could also find the plans via your council's planning website (which is what I just did to check the plans of new houses local to me).0
-
In case anyone is interested, here are the two sets of plans (my composite image, but they are to the same scale):
1 -
are those the actuals? @jrawle0
-
Those are actual plans from a development near to where I live. They are not in any way connected to the original poster's layout. I was just trying to show how there can be significant differences between private and affordable houses of the same type, even including the total floor area, and that in some respects the affordable houses can be better.Flugelhorn said:are those the actuals? @jrawle
2 -
If the OP's house was supposed to have or had an option to include an extra bathroom, is there more floorspace caused by its omission? Cup half full is my middle name.
I think it's probably too late to convince the builder to take any action, it sounds as though OP signed for the "alternate" layout.
Best advice is let it go. Enjoy your new home, never compare what you have with another's set up. Maybe down the line install a bathroom en suite to the main bedroom. In a few years you might ear-mark the money for something else as time moves on; spend it on something that matters to you then.
There were 4 Karens in my year at school, I'm sure they're all nice people still, so I'm sorry their name has been hijacked as a lazy shorthand for a type. Remember all the "nick-names" folk had for others in the 70s? The ones no one uses now? And learn from the mistakes of the past instead of repeating them.
T.W. x
1 -
Ok, let me get this straight, the OP reserved a plot for a 2 bed house with an en-suite and then found that the house was missing the en-suite, ie a whole room, and exchanged anyway? Thats one hell of a snag!
A year later is still within the 2 year limit of reporting snags, however, is this a snag? The final documentation, including the plan, should determine what 'should' be there, yes? if so and the plan states an en-suite then I guess this could be considered a snag and should be rectified accordingly.
However, this all depends on the documentation and shouldn't have anything to do with other plots in the same development and definitely shouldn't have anything to do with SO or anything else. Do you actually need an en-suite? If not, then do you really want to go through the stress of fighting with the developer never mind the stress of actually having the en-suite built if you are successful?
I've just had the snag guys in my house for the last 2 weeks rectifying the last snags (I've been in the house for just over 2 years) and even though the works weren't too major it was still not great having workmen in and out the house all the time.
If you have a big snag list have you documented it and sent it into the After Sales Manager along with a request for dates for when they will be rectified?
Good luck getting this all resolved, if you are only doing this because you think you don't compare well to your neighbours then I would suggest a change in stance, thats not a great reason for doing all this. I've found being polite but insistent has worked for getting my snags fixed.2 -
Assuming that the resolution here is that the devolpers say "OK - we'll build you the ensuite" - I'd say it would be well worth using masking tape or similar to mark out on the floor where this would be - and then live for a short while without utilising that space at all - to see how it would impact on you actually living in the property, and the reduced useable floorspace etc. It might be that you find that even without walls in place, just that loss of room to move actually wouldn't suit you at all. Could be a case of "be careful what you wish for".🎉 MORTGAGE FREE (First time!) 30/09/2016 🎉 And now we go again…New mortgage taken 01/09/23 🏡
Balance as at 01/09/23 = £115,000.00 Balance as at 31/12/23 = £112,000.00
Balance as at 31/08/24 = £105,400.00 Balance as at 31/12/24 = £102,500.00
£100k barrier broken 1/4/25
Balance as at 31/08/25 = £ 95,450.00. Balance as at 31/12/25 = £ 91,100.00
SOA CALCULATOR (for DFW newbies): SOA Calculatorshe/her3 -
EssexHebridean said:Assuming that the resolution here is that the devolpers say "OK - we'll build you the ensuite" - I'd say it would be well worth using masking tape or similar to mark out on the floor where this would be - and then live for a short while without utilising that space at all - to see how it would impact on you actually living in the property, and the reduced useable floorspace etc. It might be that you find that even without walls in place, just that loss of room to move actually wouldn't suit you at all. Could be a case of "be careful what you wish for".
Excellent idea...after a few weeks you'll know whether you need storage instead. DD bought a new build and instantly had wardrobes fitted!
0 -
Leave the bathroom door open to cut down on the mould issue.
Also use toilet paper soaked in bleach on the mouldy bits and leave for 24 hours. Mould will be gone0
Confirm your email address to Create Threads and Reply
Categories
- All Categories
- 354K Banking & Borrowing
- 254.3K Reduce Debt & Boost Income
- 455.3K Spending & Discounts
- 247K Work, Benefits & Business
- 603.6K Mortgages, Homes & Bills
- 178.3K Life & Family
- 261.1K Travel & Transport
- 1.5M Hobbies & Leisure
- 16.1K Discuss & Feedback
- 37.7K Read-Only Boards
