We’d like to remind Forumites to please avoid political debate on the Forum.
This is to keep it a safe and useful space for MoneySaving discussions. Threads that are – or become – political in nature may be removed in line with the Forum’s rules. Thank you for your understanding.
Can this structure be knocked down?
The structure in the corner, where the shelves are, and below it. It is solid wall, and was also in the adjoining room in the next room.
I'm thinking it might've been a chimney, but not too sure.
Any ideas?
Comments
-
These are usually concealing soil pipe stacks from a toilet. Is there a loo directly below or adjacent?
Also if you look outside at your roof, is there about a 4" thick pipe poking out just above where this structure is? It could also be an air admittance valve in your loft.
• The rich buy assets.
• The poor only have expenses.
• The middle class buy liabilities they think are assets.0 -
From what you describe it probably was/is a chimney, particularly if the diagonal part at the bottom was original (it looks like it might be a fireplace).
Have you got EA floor plans for this floor and the one below?
1 -
if you do want to knock it out, check what’s above and below. If it’s a chimney it could be supporting the chimney structure in the roof. So that will either need to come out or be supported.
I'm a Forum Ambassador on the housing, mortgages & student money saving boards. I volunteer to help get your forum questions answered and keep the forum running smoothly. Forum Ambassadors are not moderators and don't read every post. If you spot an illegal or inappropriate post then please report it to forumteam@moneysavingexpert.com (it's not part of my role to deal with this). Any views are mine and not the official line of MoneySavingExpert.com.3 -
I'm thinking it might've been a chimney, but not too sure.
Look in the loft and at the roof? Even if it was a chimney and the part above the roof was removed, if would make no sense to remove it from the loft and keep it in the bedroom.
0 -
What is on the other side of the LH wall, the headboard wall? And what size is the room that's beyond the end wall that has the other half of this boxing?
It's weird; if it's a chimney breast where the fireplace was on this side, then that end wall was surely installed afterwards?
0 -
It's weird; if it's a chimney breast where the fireplace was on this side, then that end wall was surely installed afterwards?
Not if the fireplace(s) were in the corners of the two rooms.
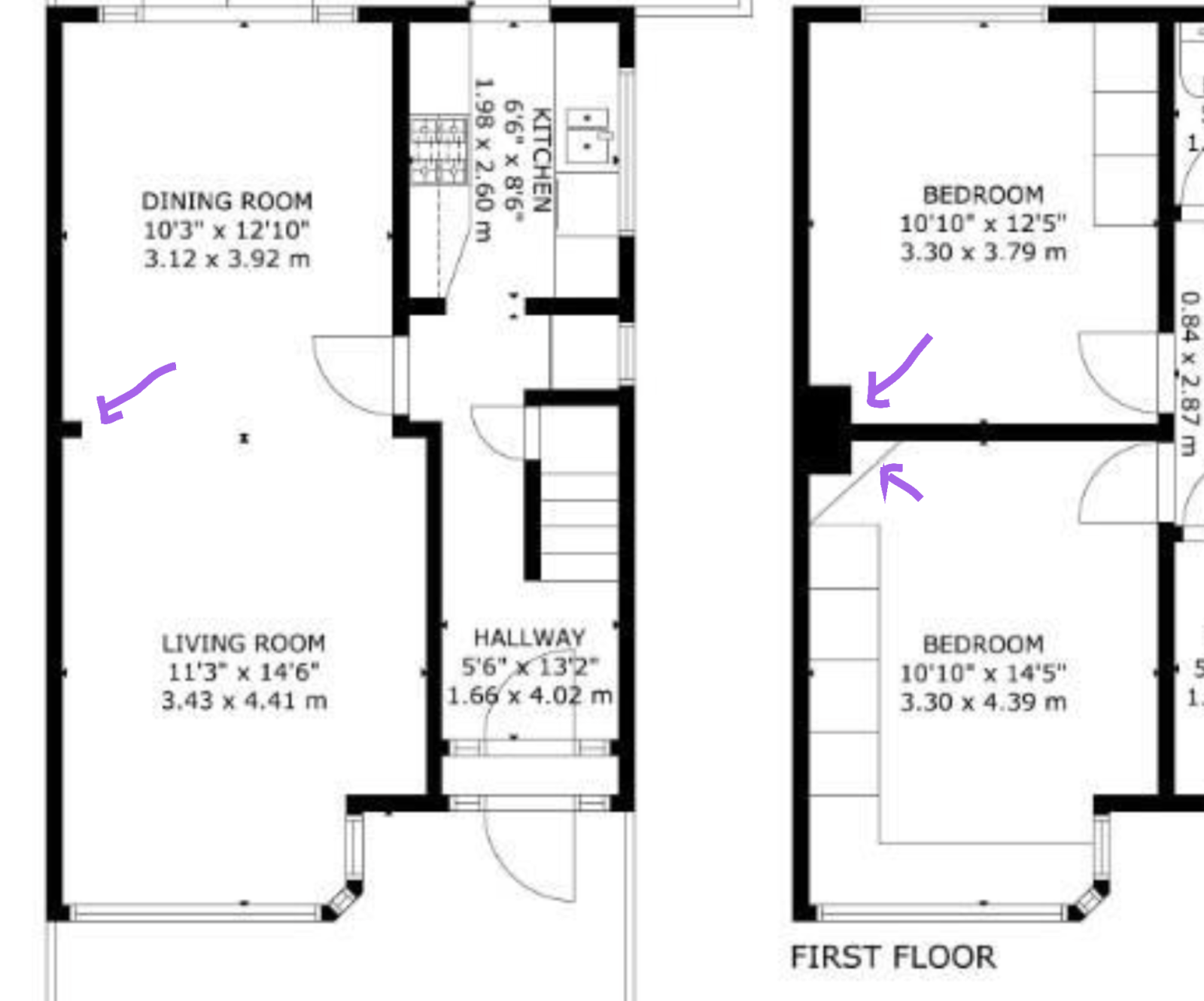
E.g. where the two red arrows are on this diagram. All the flues would be in the corner in a single breast, rather than having two separate breasts all the way from the ground floor to the loft. It saves bricks.
And also means not having a large lump of masonry in the middle of the wall where you might want to position furniture (e.g. the bed)
4 -
I've also added the floorplan.
It's a house I'm viewing, so not my house. I do think the chimneys downstairs were taken out perhaps.
2 -
Can we have some photos of the loft. Particularly above the bit you want to knock out.
No reliance should be placed on the above! Absolutely none, do you hear?0 -
Looks like a semi? See if you can get clues from its sister, and other similar properties in the 'hood - any stacks on the outside? If so, how many pots on each?
The upstairs shows two bedrooms of decent size, so I'm guessing that end/separating wall was always there, so isn't now 'splitting' a single chimney breast as I'd originally wondered.
Chances are, instead, that the breast supplies the ground floor, whether a single fireplace or a twin as S62 showed. It looks as tho' the ground floor breast was removed to allow that space to be opened up, so I'd be asking for proof that the upper breast is being correctly supported.
Can it come out? Assuming it's as said, then yes, and pretty straight forward for a builder, tho' messy and involved. Bear in mind there's also likely a stack in the loft which will then need either supporting or removing, and if that still goes through the roof, then that will need patching too! And finally, it could (likely will) be shared with the next door, so you'll need to engage with them on this, as it could well impinge on them - anticipate some decorative cracks...
Best case scenario is if they want rid of theirs too, so you can split the cost.
So, standard work for a builder, but involved and I bet not cheap.
That's all guesswork, if course.
Perhaps Stuart can suggest a ballpark figure?
0 -
Chances are, instead, that the breast supplies the ground floor, whether a single fireplace or a twin as S62 showed. It looks as tho' the ground floor breast was removed to allow that space to be opened up, so I'd be asking for proof that the upper breast is being correctly supported.
On the assumption it is/was a chimney then I'd expect the ground floor to match the first floor - two rooms, two fireplaces. The dividing wall appears to have been removed.
Can it come out? Assuming it's as said, then yes, and pretty straight forward for a builder, tho' messy and involved. Bear in mind there's also likely a stack in the loft which will then need either supporting or removing, and if that still goes through the roof, then that will need patching too! And finally, it could (likely will) be shared with the next door, so you'll need to engage with them on this, as it could well impinge on them - anticipate some decorative cracks...
Best case scenario is if they want rid of theirs too, so you can split the cost.
Advise from a structural engineer would be needed. Without the chimney breast there would be a large area of wall with not much lateral support - the (potentially) removed wall on the ground floor likely contributed some lateral support in addition to the presumed now removed chimney breast. Removing more structure would need to be done with care.
The neighbour also removing theirs wouldn't necessarily be a positive - this would further reduce the lateral support. In some respects it would be better if their chimney breast is left in place (if it hasn't been removed already) and they pick up the full cost of re-providing lateral support if they ever decide to remove it. Removing the external stack on both sides would be a benefit though.
2
Confirm your email address to Create Threads and Reply
Categories
- All Categories
- 354.1K Banking & Borrowing
- 254.3K Reduce Debt & Boost Income
- 455.3K Spending & Discounts
- 247.1K Work, Benefits & Business
- 603.7K Mortgages, Homes & Bills
- 178.3K Life & Family
- 261.2K Travel & Transport
- 1.5M Hobbies & Leisure
- 16.1K Discuss & Feedback
- 37.7K Read-Only Boards







