We’d like to remind Forumites to please avoid political debate on the Forum.
This is to keep it a safe and useful space for MoneySaving discussions. Threads that are – or become – political in nature may be removed in line with the Forum’s rules. Thank you for your understanding.
📨 Have you signed up to the Forum's new Email Digest yet? Get a selection of trending threads sent straight to your inbox daily, weekly or monthly!
The Forum now has a brand new text editor, adding a bunch of handy features to use when creating posts. Read more in our how-to guide
Kitchen / diner extension layout - I'd love suggestions please!
devon123
Posts: 83 Forumite
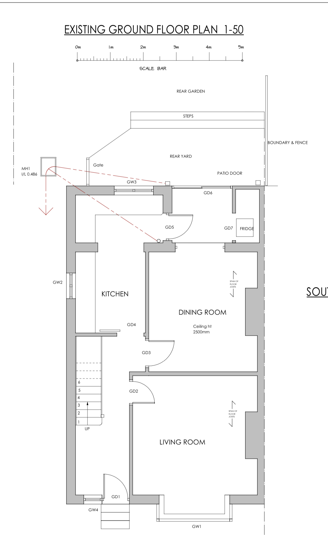
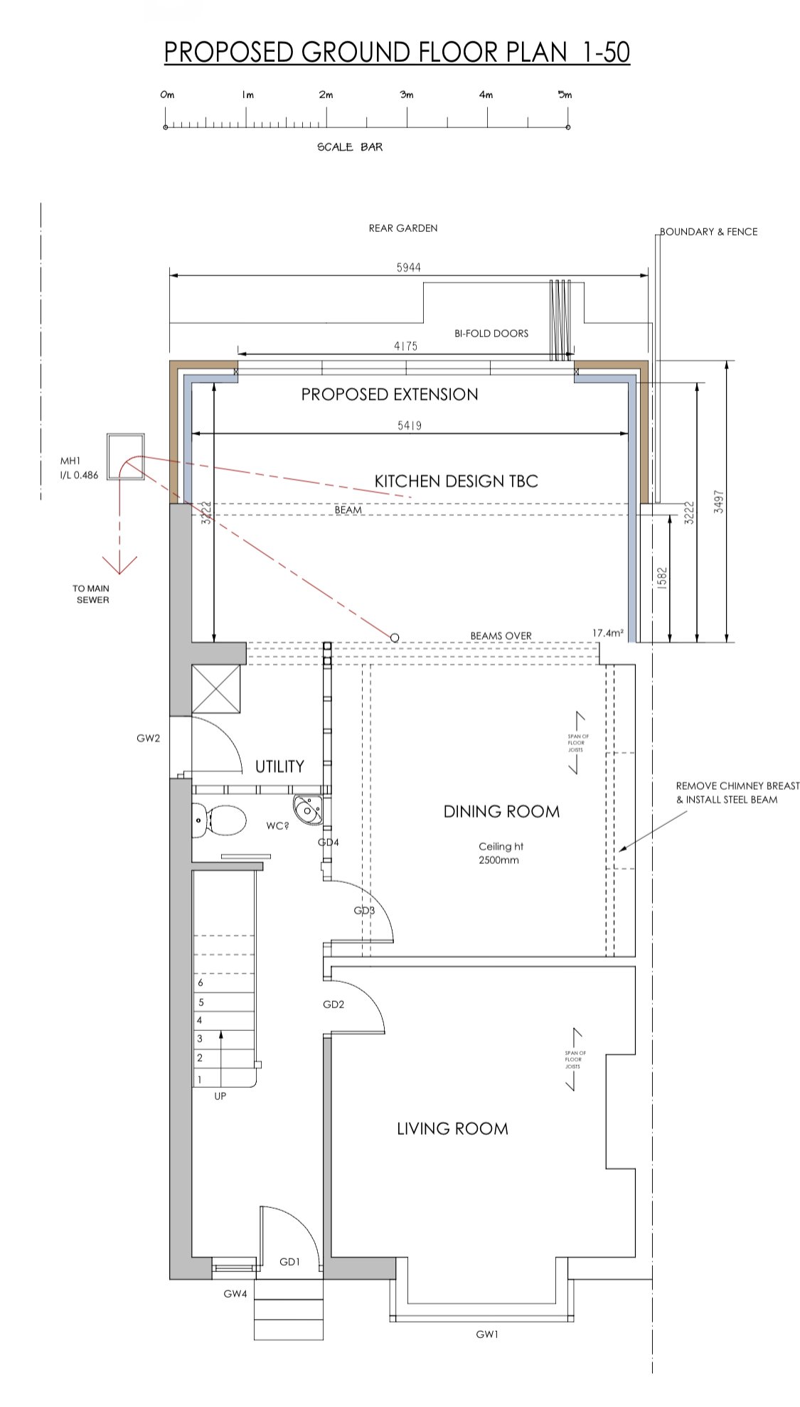
I've attached a layout of my current ground floor and also the potential changes to the current kitchen/diner and I'd really appreciate some ideas.
There's an error on there though in that the SVP doesn't run towards the shared driveway as indicated, it runs towards the other boundary towards the top right hand corner where my current steps are and across to the other neighbour. I've checked with the water company and all the drains/sewers are private so no build over agreement is needed. The problem with this is that there might not be enough of a drop to have a toilet in the proposed utility area according to a few builders who have had a look.
I am going around in circles with how to approach the layout though! The sewer might impede the distance I can extend, so it might be more like 3.3m out in total rather than the 3497mm shown as otherwise the footings will fall right where the sewer is. I can't afford to go out further beyond the sewer, so it'll need to be a bit smaller than planned stopping before the location of the sewer.
I've emailed Building Control to ask them whether the soil pipe could be moved (in terms of what the rules are with them) as I'm considering just having the room as one large space and just not bothering with a utility room. If I can't move the soil pipe, I'll probably just keep the current wall seperating the kitchen/diner where it is and will have to work around it.
In the space I have I'd like a dining table, a sofa/snug area and then a run of kitchen units and preferably an island too.
I am going around in circles with how to approach the layout though! The sewer might impede the distance I can extend, so it might be more like 3.3m out in total rather than the 3497mm shown as otherwise the footings will fall right where the sewer is. I can't afford to go out further beyond the sewer, so it'll need to be a bit smaller than planned stopping before the location of the sewer.
I've emailed Building Control to ask them whether the soil pipe could be moved (in terms of what the rules are with them) as I'm considering just having the room as one large space and just not bothering with a utility room. If I can't move the soil pipe, I'll probably just keep the current wall seperating the kitchen/diner where it is and will have to work around it.
In the space I have I'd like a dining table, a sofa/snug area and then a run of kitchen units and preferably an island too.
0
Comments
-
I can't see a picture of the layout1
-
Sorry, here they are…

0 -
devon123 said:There's an error on there though in that the SVP doesn't run towards the shared driveway as indicated, it runs towards the other boundary towards the top right hand corner where my current steps are and across to the other neighbour. I've checked with the water company and all the drains/sewers are private so no build over agreement is needed.Which 'other neighbour', could you draw a line on the plan showing where the drain/sewer really is? If the point where the pipe exits your property means it is entering someone else's property (instead of public space like a highway) then it will be a public sewer from that point - and the 3m rule would apply as a radius around that. If the pipe crosses from the left-hand neighbour's property to the one on the right then it will be a public sewer.Don't rely on what the water company say, especially if nobody from the company has visited the site. Their sewer records are incomplete, particularly when it comes to formerly private drainage, so they are often too quick to say they don't have any public sewers in your property.
The plan shows an invert level (IL) in the chamber (although 0.486 could be a depth rather than the level?) but there are no other levels on the plan. To work out whether there is enough fall for a toilet you'd need to know the ground levels outside, and the finished floor level (FFL) in the room.devon123 said:The problem with this is that there might not be enough of a drop to have a toilet in the proposed utility area according to a few builders who have had a look.devon123 said:I am going around in circles with how to approach the layout though! The sewer might impede the distance I can extend, so it might be more like 3.3m out in total rather than the 3497mm shown as otherwise the footings will fall right where the sewer is. I can't afford to go out further beyond the sewer, so it'll need to be a bit smaller than planned stopping before the location of the sewer.TBH there is something more fundamental here. The proposed plan shows a lot of steel going in, which means you'll have an expensive and lengthy build process to add not very much extra space to the property. The plan shows the extension walls being the same thickness as the existing walls, but to achieve the required level of thermal insulation, new walls have to be thicker than those built in the past, meaning in reality you'll likely have less additional space than the plan suggests.If this project was for a "whatever it costs and forever dream home" then what the plan shows is likely to achieve that.... but if you are working to a limited budget then you ought to consider whether what you are spending will make the property worth a proportionate amount more. As a rule of thumb, the more steel you need to add, the less economically sensible a renovation/conversion project becomes. Have you got to the stage where a structural engineer has looked at the plans to see what is really necessary?Something else to factor in (if you haven't) is the amount of work involved in that design means the property will be uninhabitable for some period of months - if this is your main/only home then you'll need to allow for the cost of living somewhere else for the duration. Again, temporary alternative accommodation isn't something which is usually compatible with projects being done on a limited budget.So if the position (which isn't fully clear) of the drain/sewer has become a driver of what you can build on affordability grounds then you've possibly reached a point in the project where you need to step back and think about what you really want as outcomes, and how much you are willing to pay for them.
1 -


Here I’ve attached the results of the drain survey I’ve had done. I sent this to the water company and they’ve reviewed it and replied as above. I also sent them the current layout and proposed layout as above so they could see the position of the possible extension.I did read about the 3m rule so I wasn’t expecting this reply. Should I go back to them?
Re the steels. I don’t intend to take out the chimney brest now. If I can make the layout work then the load bearing wall between the current kitchen and dining room will also stay.Thanks for your comments.0 -
devon123 said:Here I’ve attached the results of the drain survey I’ve had done. I sent this to the water company and they’ve reviewed it and replied as above.I did read about the 3m rule so I wasn’t expecting this reply. Should I go back to them?Strictly speaking "MH2" and the bits of drain between the property boundary and "MH2" are part of the public sewer system, so if you are building within 3m of them.... but if the water company are happy with your plan and say no agreement is required, then it is your call (willingness to take a risk) on whether to accept that, or get further clarification.I'm guessing the SVP/stack was on the rear of the original house, and the house has been previously extended rearwards? And presumably the only things connected to the stack are in the first floor bathroom?If so, then if the plumbing/layout of the bathroom can be modified so the SVP/stack could be moved to the side wall of the house then it should be possible to build over the pipe between MH1 and MH2, if necessary, or alternatively to change the alignment slightly to keep it outside the footprint of the extension. You'd need to do something about the bathroom drainage anyway as the 'proposed' plan currently shows the SVP in the middle of the kitchen/diner space (unless you did keep that wall).Is the rear garden higher than the house - i.e. are the steps going up to the garden?1
-
Yes, where the SVP is is the original back of the house. The extra part on the back is a 1980s extension/lean to on the back. The only thing that connects to the SVP is the upstairs bathroom.
I think I’ll call SWW for clarification as I want to be sure. Thanks.
Yes there are steps up to the garden as shown on the house plan drawing and the drainage survey. The height level difference from the back of the house as you walk out on to the current patio to the top of the steps is 51cm.
I suppose I need to find out whether the SVP can be moved to the side, however the driveway is sloped so whilst the sink/washing machine water makes it from CG2 to MH1, i don’t suppose other waste would.
Is it possible to direct the SVP over the new roof with the correct fall, and connect it that way towards MH2?
Thanks.0 -
There comes a stage when it may be cheaper and easier to move to another house that already meets your needs. Have you reached that yet?1
-
devon123 said:
Yes there are steps up to the garden as shown on the house plan drawing and the drainage survey. The height level difference from the back of the house as you walk out on to the current patio to the top of the steps is 51cm.In which case diverting the drain so it is no longer a constraint on the size of the extension is probably an option - if the level difference was greater then the cost of excavating to lay the new drain becomes more of an issue. But 0.5m is not a problem. Something like this would be the typical way of avoiding building over a drain/sewer....
Unless there is a door or window in the way, it is usually possible to run a soil pipe horizontally (with fall) to get to a point where it can go underground with sufficient cover. If there's an issue with this it is more likely to be due to the driveway being shared with the neighbour (is it?) and restrictions on what you can do in that space which might obstruct the access.devon123 said:I suppose I need to find out whether the SVP can be moved to the side, however the driveway is sloped so whilst the sink/washing machine water makes it from CG2 to MH1, i don’t suppose other waste would.
It might be possible, but generally having soil/drain pipes running over the top of a roof is considered to be a bodge. It can be difficult to make sure the pipe is properly supported, and pipes like this look ugly.devon123 said:Is it possible to direct the SVP over the new roof with the correct fall, and connect it that way towards MH2?
0 -
Ok thanks that’s really helpful.
There’s no door or window in the way so that should be ok. The driveway is shared but it’s wide enough to mean there would be no issues with access if pipes need to be put in or dug up and replaced. It’s not used for vehicles either.0 -
If you and your neighbour jointly own the full width of the driveway, it might be worth double checking whether you have any restrictions over what you can do with / under the driveway, i.e. nothing preventing you running sewers or drains underneath it.devon123 said:Ok thanks that’s really helpful.
There’s no door or window in the way so that should be ok. The driveway is shared but it’s wide enough to mean there would be no issues with access if pipes need to be put in or dug up and replaced. It’s not used for vehicles either.1
Confirm your email address to Create Threads and Reply
Categories
- All Categories
- 354.1K Banking & Borrowing
- 254.3K Reduce Debt & Boost Income
- 455.3K Spending & Discounts
- 247.1K Work, Benefits & Business
- 603.7K Mortgages, Homes & Bills
- 178.3K Life & Family
- 261.2K Travel & Transport
- 1.5M Hobbies & Leisure
- 16.1K Discuss & Feedback
- 37.7K Read-Only Boards

