We’d like to remind Forumites to please avoid political debate on the Forum.
This is to keep it a safe and useful space for MoneySaving discussions. Threads that are – or become – political in nature may be removed in line with the Forum’s rules. Thank you for your understanding.
PLEASE READ BEFORE POSTING: Hello Forumites! In order to help keep the Forum a useful, safe and friendly place for our users, discussions around non-MoneySaving matters are not permitted per the Forum rules. While we understand that mentioning house prices may sometimes be relevant to a user's specific MoneySaving situation, we ask that you please avoid veering into broad, general debates about the market, the economy and politics, as these can unfortunately lead to abusive or hateful behaviour. Threads that are found to have derailed into wider discussions may be removed. Users who repeatedly disregard this may have their Forum account banned. Please also avoid posting personally identifiable information, including links to your own online property listing which may reveal your address. Thank you for your understanding.
📨 Have you signed up to the Forum's new Email Digest yet? Get a selection of trending threads sent straight to your inbox daily, weekly or monthly!
Council Tax Challenge at tribunal
Comments
-
Is your neighbour willing to share the comparisons they used in their successful challenge?What bands are other houses in the area that sold for around the same amount around the same time?But a banker, engaged at enormous expense,Had the whole of their cash in his care.
Lewis Carroll0 -
Yours definitely looks smallerjmmo20 said:
I know..lincroft1710 said:
Upload a plan of your house so we can compare. Also please avoid the emotion, it won't help your case.jmmo20 said:In any case the VOA is quite full of it. I managed to find the floorplans for the newbuild they are comparing my house to. VOA claims it's a 3 bed room house of similar size. BS! It's a massive 4-bedroom-plus-studio house !! I'm quite outraged to be honest. It took us a lot of years saving for our first home now to be bundled up with a house that is significantly larger and more expensive. Why does the VOA claim it's a 3-bed when it's clearly a 4-bed?
not as detailed though
Please see thi
sIf you are querying your Council Tax band would you please state whether you are in England, Scotland or Wales0 -
I may be wrong but I thought council tax could only be increased if a transaction happens (sale) on the home if improvements or extensions have been made.0
-
Gather ye rosebuds while ye may1
-
This area has very few new builds. Virtually all 3-bedroom homes in the street and nearby streets are tax band C or D, as this area used to be quite poor. It has gone up in value and prices over the last 30 years with the scientific development of the town.jimbog said:
Even within the same small development I live in, with a bunch of 8 other houses, they are all now tax band E even though they are virtually the same 3-bedroom 124 sq m except ours and my neighbour which are 129 sq.m
Their houses are terraced and ours are 2 semi.. another difference is the garage, they don't have any but that shouldn't matter for tax band purposes.
I struggled to find 3-bed semi detacched properties around to justify the challenge. And then along came the VSO and matched my 3-bed property with a 4+ bed property, and they mistakenly reported that property as 3-bed.
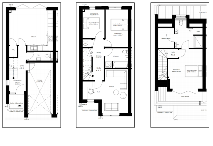
It's pretty easy to tell.. there are only 4 homes in that postcode they used and they are all the same.. (see floorplan above).
And I know I should keep emotion out of it but it seems pretty random that the VSO is being so difficult with our semi-detached homes while they've been fairly straight forward with my neighbours in the terraced homes.0 -
Yes and in fact the funny thing is that I used the same examples.theoretica said:Is your neighbour willing to share the comparisons they used in their successful challenge?What bands are other houses in the area that sold for around the same amount around the same time?
The only difference been they are a end-of-terrace and we are semi. But as I say almost same floor area, same receptions, same bedrooms, same bathrooms. In fact they have an additional studio that we don't have.0 -
The house the VSO is comparing mine to was sold in Jan 2017 for £680,000AdrianC said:
The only thing that CT is based on is the house value. If you're in England or Scotland, it's adjusted to a nominal date of 1st April 1991. If you're in Wales, 1st April 2003.jmmo20 said:but my house has an integral garage but this garage is not habitable (i.e. no insulation).
The house they are comparing mine with does not have a garage so all the "external area" is habitable.
My problem is that in the future if I decide to convert the garage to a 4th bedroom, VOA will want to increase my council tax!!
They know what your house last sold for when.
They know what values in your area did between the valuation date and that sale date.
Floor area isn't the primary determinant - value is.
That's almost £150,000 more than my property which I bought in 2020. Presumably that house will be worth quite a lot more than 680K now 4 years later.0 -
You are hung up on floor area. That's NOT what it's based on. It's based on nominal value, based to 1991.jmmo20 said:Even within the same small development I live in, with a bunch of 8 other houses, they are all now tax band E even though they are virtually the same 3-bedroom 124 sq m except ours and my neighbour which are 129 sq.m
Their houses are terraced and ours are 2 semi.. another difference is the garage, they don't have any but that shouldn't matter for tax band purposes.
So a semi with a garage WILL be worth more than a terrace without. Blatantly obvious, right?
Band E is nominal 1991 value of £88-120k
Band F is nominal 1991 value of £120-160k
If the terrace were worth ~£110k in 1991, then - yes - a semi with garage would easily be worth more than £120k then. But if the terrace were £90k, then probably not.
So what were properties selling for around there in 1991...?0 -
Haven't found much sales info from 1991.. but a 3-bed semi 20 metres from me sold for £190K in 2006AdrianC said:
You are hung up on floor area. That's NOT what it's based on. It's based on nominal value, based to 1991.jmmo20 said:Even within the same small development I live in, with a bunch of 8 other houses, they are all now tax band E even though they are virtually the same 3-bedroom 124 sq m except ours and my neighbour which are 129 sq.m
Their houses are terraced and ours are 2 semi.. another difference is the garage, they don't have any but that shouldn't matter for tax band purposes.
So a semi with a garage WILL be worth more than a terrace without. Blatantly obvious, right?
Band E is nominal 1991 value of £88-120k
Band F is nominal 1991 value of £120-160k
If the terrace were worth ~£110k in 1991, then - yes - a semi with garage would easily be worth more than £120k then. But if the terrace were £90k, then probably not.
So what were properties selling for around there in 1991...?0 -
The only figure that matters is what YOUR house, as it sits now, where it sits, in the current condition, would have sold for in 1991.
Any other values, any comparable properties, are merely used to help to back-calculate that figure.1
Confirm your email address to Create Threads and Reply
Categories
- All Categories
- 352.2K Banking & Borrowing
- 253.6K Reduce Debt & Boost Income
- 454.3K Spending & Discounts
- 245.2K Work, Benefits & Business
- 600.9K Mortgages, Homes & Bills
- 177.5K Life & Family
- 259.1K Travel & Transport
- 1.5M Hobbies & Leisure
- 16K Discuss & Feedback
- 37.7K Read-Only Boards

