We’d like to remind Forumites to please avoid political debate on the Forum.
This is to keep it a safe and useful space for MoneySaving discussions. Threads that are – or become – political in nature may be removed in line with the Forum’s rules. Thank you for your understanding.
📨 Have you signed up to the Forum's new Email Digest yet? Get a selection of trending threads sent straight to your inbox daily, weekly or monthly!
The Forum now has a brand new text editor, adding a bunch of handy features to use when creating posts. Read more in our how-to guide
How would you access this leak ???
ibz75
Posts: 117 Forumite
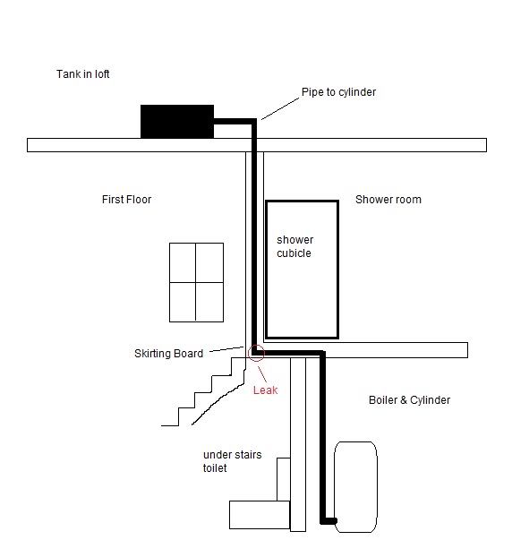
I think I have found the leak on the cold feed pipe to the hot water cylinder. However, its propbably in the worst possible location!!!
The leak seems to be coming from a L-shaped joint. The pipe runs from the wall in-between a partition (top of stairs & bathroom).
It also sits between two thick ceiling beams on either side. The only way to access this might be to break into the partition wall from either side, but this is going to cause a lot of repairs/decorating afterwards. There is a shower cubicle with tiles on one side (bathroom), and the other is just papered at the top of the stairs.
The cheapest option might be to break/cut an access point from the ceiling below. There is an under stairs toilet area directly below. That is where the majority of the leaking water was coming.
I have attached a quick sketch which might explain a bit better.
What would you do?
The leak seems to be coming from a L-shaped joint. The pipe runs from the wall in-between a partition (top of stairs & bathroom).
It also sits between two thick ceiling beams on either side. The only way to access this might be to break into the partition wall from either side, but this is going to cause a lot of repairs/decorating afterwards. There is a shower cubicle with tiles on one side (bathroom), and the other is just papered at the top of the stairs.
The cheapest option might be to break/cut an access point from the ceiling below. There is an under stairs toilet area directly below. That is where the majority of the leaking water was coming.
I have attached a quick sketch which might explain a bit better.
What would you do?
0
Comments
-
Ceiling below seems to offer the possibility of least damage.0
-
That seems an point to get a burst. Being central in the house it should be getting latent heat from the surroundings. Are you sure that the leak isn't much higher up the pipe and the water running down the pipe and dripping through the ceiling at that point?I'm a Forum Ambassador on the housing, mortgages & student money saving boards. I volunteer to help get your forum questions answered and keep the forum running smoothly. Forum Ambassadors are not moderators and don't read every post. If you spot an illegal or inappropriate post then please report it to forumteam@moneysavingexpert.com (it's not part of my role to deal with this). Any views are mine and not the official line of MoneySavingExpert.com.0
-
That seems an point to get a burst. Being central in the house it should be getting latent heat from the surroundings. Are you sure that the leak isn't much higher up the pipe and the water running down the pipe and dripping through the ceiling at that point?
hi, i had thought the same. the tank is on the sloping end of the roof, with the pipes going down the inner wall before the gutter. all pipes are insulated till that point. i have crawled as far as possible to look at the joints taking the pipes down, but cannot see an obvious leak. so i am assuming its the joint below.
can a pipe freeze and burst in the centre, or is it mostly at the joints?0 -
Who is your house insurance with (They may include cover for trace and access which may cover this)0
-
Who is your house insurance with (They may include cover for trace and access which may cover this)
i have 'home emergency' cover included in my home insurance. but this only covers the first 500 pounds of a claim. i am waiting for a plumber to be sent, but wanted peoples advice so that i have an idea of what to expect. if someone could give me a rough estomate of likely costs, that would be helpful.0 -
Possibly run a new (plastic) pipe to replace the leaky one and disconnect it both ends.This is an open forum, anyone can post and I just did !0
-
Yeah, if the access is that awkward, I too, would be inclined to run an entirely new pipe if at all possible. Also, yes it is entirely possible for a pipe to burst anywhere along it's length.I can afford anything that I want.
Just so long as I don't want much.0 -
as above. cut off both ends of the pipe and re-pipe it in new plastic pipe.
always try and minimise joints esp in bad places. plastic pipe is great in that respect.
just a joint at each end.Get some gorm.0 -
I made a hole in the ceiling below the joint where I suspected the leak (The plaster was damp anyway, so I thought 'why not').
There are 3 pipes next to each other coming from the right and going upward (through the partition). I turned the water on and stood underneath with a torch. It could be that the leak is occuring further up the pipe than I had thought.
So, worst case scenario, accessing the leak might mean going through the partition wall which I hope is plasterboard. I am still waiting for the plumber to be sent by my insurer (home emergency cover). My only fear is that I am only covered for the first £500.
What would be a reasonable estimate for a job like this i.e. getting to a pipe through a partition/wall? How long should it take?
Really want some guidence so I am armed with some answers for the dreaded 'pppphhhwwww....'
Thanks0
This discussion has been closed.
Confirm your email address to Create Threads and Reply
Categories
- All Categories
- 354K Banking & Borrowing
- 254.3K Reduce Debt & Boost Income
- 455.3K Spending & Discounts
- 247.1K Work, Benefits & Business
- 603.7K Mortgages, Homes & Bills
- 178.3K Life & Family
- 261.2K Travel & Transport
- 1.5M Hobbies & Leisure
- 16.1K Discuss & Feedback
- 37.7K Read-Only Boards
