We’d like to remind Forumites to please avoid political debate on the Forum.
This is to keep it a safe and useful space for MoneySaving discussions. Threads that are – or become – political in nature may be removed in line with the Forum’s rules. Thank you for your understanding.
PLEASE READ BEFORE POSTING
Hello Forumites! However well-intentioned, for the safety of other users we ask that you refrain from seeking or offering medical advice. This includes recommendations for medicines, procedures or over-the-counter remedies. Posts or threads found to be in breach of this rule will be removed.📨 Have you signed up to the Forum's new Email Digest yet? Get a selection of trending threads sent straight to your inbox daily, weekly or monthly!
Help with kitchen space

continualdiamond
Posts: 2,830 Forumite
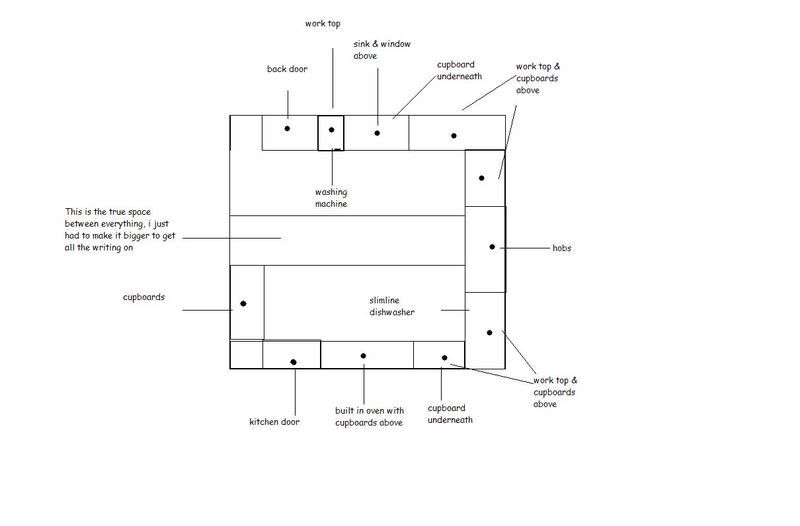
Been advised to post on here as well (from money saving arms board). Basically my kitchen is super tiny, i struggle with work top space to create nice dinners. So heres a rough idea of my kitchen design.
http://img.photobucket.com/albums/v63/sweetasonecanbe/kitchen.jpg
I tend to stick to very easy meals, like spag bol, cos it doesn't involve much. But im getting bored and its all to do with lack of prep space.
I was thinking a kitchen trolley might solve my problem if they're not too wide as i have 1 wall that the back door comes off that i could just fit something like this on. But was told to pop over here 1st before buying any gagets.
So hope someone has some ideas for me
http://img.photobucket.com/albums/v63/sweetasonecanbe/kitchen.jpg
I tend to stick to very easy meals, like spag bol, cos it doesn't involve much. But im getting bored and its all to do with lack of prep space.
I was thinking a kitchen trolley might solve my problem if they're not too wide as i have 1 wall that the back door comes off that i could just fit something like this on. But was told to pop over here 1st before buying any gagets.
So hope someone has some ideas for me

Mummy to two girls: October 2013 and February 2016
0
Comments
-
I shall follow this one with interest - your kitchen looks very similar to mine - except I've got a fridge/freezer crammed in there too. It is difficult - I know!
I've had to resort to using 2 sitting room cupboards as back-up storage space.0 -
Its extremely difficult, i should of pointed out, i do have a fridge, just not in my kitchen, its in the spare room and chest freezer is main bedrooms wardrobe :rotfl:
People also suggested on my other post on the diff forum to move the in built oven, so i have an all in one where my hobs are. Fab idea, but i cannot afford anything like that or to really alter my kitchen at all in terms of a big expence.
So really i need to work with the space i have and obviously i just have 1 spare wall between kitchen door/back door, kinda like a little gallery, BUT it is extremely tiny, cos i tried my fridge in that space and the back door wouldn't open, let alone that you actually had to tippy toe to fit between the fridge and that work top space next to the sink.
People came up with good ideas to help on cupboard space, like store applicances that aren't used as much in boxes else where, like top of wardrobes etc.
But im after ideas to extend prep space, anyone know if anything exists to place over the kitchen sink, that would help.
Im in a 2 bed ground floor flat, no dinning room, so sit on the sofa and eat off a dinner tray. 1 storage cupboard in spare room, as have boiler and hot water tank in this room as well. I would love the space they take up in those cupboards.
In built wardrobe in main bedroom and 1 storage cupboard which is underneath upstairs stairs (if that makes sense) as they're front door presents them with stairs up to the flat for them.Mummy to two girls: October 2013 and February 20160 -
The main problem appears to be that all the usable work surfaces are in the corners and therefore not very useable!
We had the same difficulties before we ripped out the kitchen and redigned the layout using ikea's free kitchen planner. I bought a butchers block for about £20 from argos before we did that and it made things so much easier. It has now gone to live with SIL who makes great use of it too.0 -
You can get chopping boards that fit over sinks that would provide a little more surface.0
-
Ohhh where might i find these chopping boards??? Cos i did look online but seemed to find ones that were only made for the sink you bought, not just in general.Mummy to two girls: October 2013 and February 20160
-
Can you take a photo? It looks like loads of space to me, but that could be your drawing skillz.0
-
lol it will be my drawing skills, give me a few secs and i'll upload a pic with a direct linkMummy to two girls: October 2013 and February 20160
-
It's about 3x the size of mine! It's not easy but is do-able (we're a family of 4). I use little chopping boards and transfer chopped food into pans frequently. I also do a lot of 1-pot dishes and use my 4.5l slow-cooker loads, (it can stand on the surface in a corner).
Ikea used to sell large over-sink chopping boards, take measurements, but they're pretty standard. I also have a metal dish-drainer, so I can put a hot pan there at a pinch. A cooker cover or large glass chopping board, to use on top of the cooker, when it's not in use and is cold, is also useful.
jayAnytime;)0 -
To try out the idea of an over sink/drainer prep surface you could get any bit of cheap wood of the right size to see if using/storing it would be practical. If it works then get a nicer piece when you can afford it. You could also do this over your hob if you were going to prep a meal that was going in the oven.
Not sure if this would work but Ikea do a small rectangular table that is attached to the wall - it lies flat and swings up and has a hinged leg that swings out from the wall to support it. When not in use it all folds down and sticks out no more than 2" from the wall. Again you could have a try out with bit of cardboard box to see if it would fit. The ikea one only costs about £5.
You can also get those little rubberwood folding tables for about £5. They aren't huge but would give you a bit of prep space and would fold away flat afterwards - or you could use one as a mini dinner table."Life is not about waiting for the storm to pass...it's about learning how to dance in the rain." ~ Vivian Greene0 -
Ok, prepare for pics. I had to take loads for you to get an idea of the space and it was very hard to actually try and fit it all in cos i physically couldn't stand any further back.
Entrance - http://img.photobucket.com/albums/v63/sweetasonecanbe/DCFC0001.jpg
Cooker - http://img.photobucket.com/albums/v63/sweetasonecanbe/DCFC0002.jpg
Hobs - http://img.photobucket.com/albums/v63/sweetasonecanbe/DCFC0003.jpg
Sink - http://img.photobucket.com/albums/v63/sweetasonecanbe/DCFC0004.jpg
Back door space - http://img.photobucket.com/albums/v63/sweetasonecanbe/DCFC0005.jpg
Cupboard just randomly placed on wall - http://img.photobucket.com/albums/v63/sweetasonecanbe/DCFC0006.jpg
Under oven - http://img.photobucket.com/albums/v63/sweetasonecanbe/DCFC0007.jpg
Washing machine - http://img.photobucket.com/albums/v63/sweetasonecanbe/DCFC0008.jpg
Again, sorry for so many pics, but as you can see kitchen is soooo tiny i had to take loads for you to get a fair idea.
Oh by the way i kept the fat fryer and steamer out to give an idea of space, this is what was used tonight. OH is fussy eater and used fat fryer for chips and had ribs in the oven. I had fish and veg in the steamer. We used to have an under counter fridge under the hobs, but it stopped working after a yr and was just outta warranty, which i feared was because of the heat from the hobs.
Due to the small kitchen space is why we went for a slimline dishwasher, to save the worktops being over run with dishes after cooking 2 meals.Mummy to two girls: October 2013 and February 20160
This discussion has been closed.
Confirm your email address to Create Threads and Reply

Categories
- All Categories
- 352.1K Banking & Borrowing
- 253.6K Reduce Debt & Boost Income
- 454.2K Spending & Discounts
- 245.1K Work, Benefits & Business
- 600.7K Mortgages, Homes & Bills
- 177.5K Life & Family
- 258.9K Travel & Transport
- 1.5M Hobbies & Leisure
- 16.1K Discuss & Feedback
- 37.6K Read-Only Boards