We’d like to remind Forumites to please avoid political debate on the Forum.
This is to keep it a safe and useful space for MoneySaving discussions. Threads that are – or become – political in nature may be removed in line with the Forum’s rules. Thank you for your understanding.
PLEASE READ BEFORE POSTING: Hello Forumites! In order to help keep the Forum a useful, safe and friendly place for our users, discussions around non-MoneySaving matters are not permitted per the Forum rules. While we understand that mentioning house prices may sometimes be relevant to a user's specific MoneySaving situation, we ask that you please avoid veering into broad, general debates about the market, the economy and politics, as these can unfortunately lead to abusive or hateful behaviour. Threads that are found to have derailed into wider discussions may be removed. Users who repeatedly disregard this may have their Forum account banned. Please also avoid posting personally identifiable information, including links to your own online property listing which may reveal your address. Thank you for your understanding.
📨 Have you signed up to the Forum's new Email Digest yet? Get a selection of trending threads sent straight to your inbox daily, weekly or monthly!
The Forum now has a brand new text editor, adding a bunch of handy features to use when creating posts. Read more in our how-to guide
Floorplan and Sqm Listed - very inaccurate?
skipfeeney
Posts: 131 Forumite
Hi All,
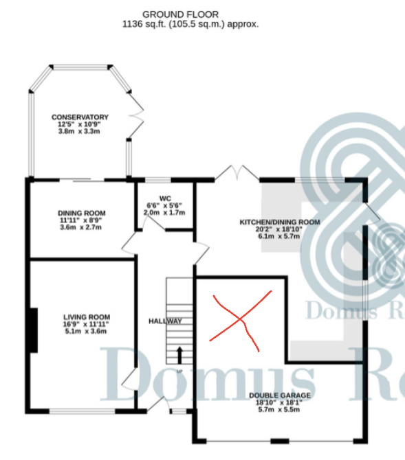
Is it just me or is this floorplan very inaccurate in terms of calculating the sqm? I have calculated it room by room and it doesn't come up to 105sqm. They must have included the garage in the those calcs. Also if they are adding up the longest measurements then also they must have double counted the square where I have marked an X? or am I wrong?

Is it just me or is this floorplan very inaccurate in terms of calculating the sqm? I have calculated it room by room and it doesn't come up to 105sqm. They must have included the garage in the those calcs. Also if they are adding up the longest measurements then also they must have double counted the square where I have marked an X? or am I wrong?

0
Comments
-
Have you included the hallway?
If you include the hallway and the garage, 105.5 sq m seems about right to me.
FWIW, I calculated that by dividing the house into 3 rectangles - green, pink and blue:
2 -
Room by room, assuming conservarory is square, double counting thr red x and skipping the hallway gives me 110m^2.
The garage will be included in the size but probably not double counted.
It's only going to be an estimate though and don't really mean anything in reality as long as the rooms are a suitable size for you. The only time it would matter is when calculating what output you'd need from a boiler and that'll be fine to the nearest 10m^2.
1 -
The main square of the house is roughly 8m and a bit long on average, and roughly 11 metres across, which is around 90 square meters. The conservatory is about 12 square meters so total is around 102 ish in my rough calcs. Includes the garage but not double counting.1
-
Possibly confusion between internal and external area? I think EPCs usually just use external area, so includes all the non-usable bits.
These things are rarely critical in the UK house buying market though. If you want more precision, arrange your own measurement.1 -
Usually ( I think ) it is made clear whether the stated floor area includes a garage, but maybe it is grey area when it is an internal garage.1
-
Good point - I missed the hallway!eddddy said:
Have you included the hallway?
If you include the hallway and the garage, 105.5 sq m seems about right to me.
FWIW, I calculated that by dividing the house into 3 rectangles - green, pink and blue:
0 -
Yeah I just like to use these to compare houses (I am an indecisive person!) . The one we are comparing against the garage is not included in the numberHerzlos said:Room by room, assuming conservarory is square, double counting thr red x and skipping the hallway gives me 110m^2.
The garage will be included in the size but probably not double counted.
It's only going to be an estimate though and don't really mean anything in reality as long as the rooms are a suitable size for you. The only time it would matter is when calculating what output you'd need from a boiler and that'll be fine to the nearest 10m^2.0 -
Square footage etc is ok measure on paper, and often used as a sense check of the broad pricing but the reality is more complex as you can have more floor space but a really poor layout meaning its less useable than a smaller property with a better considered layout.1
Confirm your email address to Create Threads and Reply
Categories
- All Categories
- 354.1K Banking & Borrowing
- 254.3K Reduce Debt & Boost Income
- 455.3K Spending & Discounts
- 247.1K Work, Benefits & Business
- 603.7K Mortgages, Homes & Bills
- 178.3K Life & Family
- 261.2K Travel & Transport
- 1.5M Hobbies & Leisure
- 16.1K Discuss & Feedback
- 37.7K Read-Only Boards
