We’d like to remind Forumites to please avoid political debate on the Forum.
This is to keep it a safe and useful space for MoneySaving discussions. Threads that are – or become – political in nature may be removed in line with the Forum’s rules. Thank you for your understanding.
PLEASE READ BEFORE POSTING: Hello Forumites! In order to help keep the Forum a useful, safe and friendly place for our users, discussions around non-MoneySaving matters are not permitted per the Forum rules. While we understand that mentioning house prices may sometimes be relevant to a user's specific MoneySaving situation, we ask that you please avoid veering into broad, general debates about the market, the economy and politics, as these can unfortunately lead to abusive or hateful behaviour. Threads that are found to have derailed into wider discussions may be removed. Users who repeatedly disregard this may have their Forum account banned. Please also avoid posting personally identifiable information, including links to your own online property listing which may reveal your address. Thank you for your understanding.
📨 Have you signed up to the Forum's new Email Digest yet? Get a selection of trending threads sent straight to your inbox daily, weekly or monthly!
The Forum now has a brand new text editor, adding a bunch of handy features to use when creating posts. Read more in our how-to guide
How could this bathroom problem be fixed? Or, should it be?
RHemmings
Posts: 4,895 Forumite
This is just a general knowledge query - I don't own this house nor can I buy it. I'm just trying to gain knowledge that would help me evaluate houses I see for sale so that I can know what can be done.
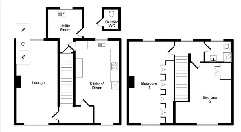
In the following house, the shower room is a bit small and I don't think it could fit a bath.



While it isn't a deal-breaker, I would prefer a bath. Just out of curiosity and using this as an example, is there a way to fix this with minor changes. I'm guessing that the simplest way to fix it would be to have a minimal sink on the wall next to the toilet, and two small storage cupboards above the sink and the toilet.
The next step might be to move the wall and door of the bathroom out a bit without blocking bedroom 2. To give more space in the bathroom in general. How likely is it that a wall could be moved, and wildly approximately how much would it cost.
The utility room might be convertable into a bathroom, but it would be odd to have a back door leading from a bathroom.
Finally, a single story extension to the back of the lounge and beside the utility room. That's a pretty big change.
What I would like to ask is: if people are kind enough to put themselves in my shoes, then what would you do if you were looking at this house and wanted a bath somewhere in it?
The answer 'accept only having a shower or find another house' is an entirely valid one.
I ask because when looking into another house that is small in general, I found out the approximate prices, timescales, and limitations on 'permitted development' for adding a lean-to garage to the side. Which 'fixed' the house for me, until my son outright rejected the area. I'm wondering how much I should be envisaging 'fixing' issues with houses, versus finding the one that is already everything I want.
In the following house, the shower room is a bit small and I don't think it could fit a bath.


While it isn't a deal-breaker, I would prefer a bath. Just out of curiosity and using this as an example, is there a way to fix this with minor changes. I'm guessing that the simplest way to fix it would be to have a minimal sink on the wall next to the toilet, and two small storage cupboards above the sink and the toilet.
The next step might be to move the wall and door of the bathroom out a bit without blocking bedroom 2. To give more space in the bathroom in general. How likely is it that a wall could be moved, and wildly approximately how much would it cost.
The utility room might be convertable into a bathroom, but it would be odd to have a back door leading from a bathroom.
Finally, a single story extension to the back of the lounge and beside the utility room. That's a pretty big change.
What I would like to ask is: if people are kind enough to put themselves in my shoes, then what would you do if you were looking at this house and wanted a bath somewhere in it?
The answer 'accept only having a shower or find another house' is an entirely valid one.
I ask because when looking into another house that is small in general, I found out the approximate prices, timescales, and limitations on 'permitted development' for adding a lean-to garage to the side. Which 'fixed' the house for me, until my son outright rejected the area. I'm wondering how much I should be envisaging 'fixing' issues with houses, versus finding the one that is already everything I want.
1
Comments
-
The space occupied by the sink and shower would have room for a bath with shower over. You can now get sinks that sit on top of the toilet cistern. Or angle the toilet at 45 degrees from the corner into the room, leaving more space for the sink as you walk in. An outward opening door would also help.I'm a Forum Ambassador on the housing, mortgages & student money saving boards. I volunteer to help get your forum questions answered and keep the forum running smoothly. Forum Ambassadors are not moderators and don't read every post. If you spot an illegal or inappropriate post then please report it to forumteam@moneysavingexpert.com (it's not part of my role to deal with this). Any views are mine and not the official line of MoneySavingExpert.com.2
-
Thanks very much for these ideas. It makes me think the current bathroom would be more fixable than I originally imagined.silvercar said:The space occupied by the sink and shower would have room for a bath with shower over. You can now get sinks that sit on top of the toilet cistern. Or angle the toilet at 45 degrees from the corner into the room, leaving more space for the sink as you walk in. An outward opening door would also help.0 -
yep, sink integrated with toilet and shower over bath1
-
Outward-opening door for sure.
Integrate sink with toilet (bonus points if the sink can drain into the toilet cistern)
And look into a shower unit with a curved door, rather than straight edges to see if you can still have separate shower and bath units.1 -
I wasn't aware of the combined toilets/sinks though I support I must have seen and used them some time in my life.

More minimal than I envisaged. Certainly a space saver. I'm not sure about moving teeth brushing even closer to a toilet, but I suppose if they are already in the same small room, it's not going to make a difference. I'll look to see what other models exist.0 -
Hmm, that one does look a bit too minimal1
-
That type of sink/toilet combo might be acceptable in, say, a small downstairs cloakroom where there is no other option - or in the outside toilet shown in your floorplan.
But I doubt anyone would be happy with that as the only sink in a family bathroom.
TBH, I think many people would prefer "a proper sized sink plus a shower" to "a tiny sink plus a bath" in a family bathroom.
4 -
Thanks for all the posts everyone. Looking at the floorplan and thinking of the outwards opening door, I wonder if the sink can move to the end of the wall away from the shower, become smaller, and make space for a bath. All the places I lived in in Japan that had baths at all had tiny ones, though I don't want that now. But, I think that having a smaller but still reasonable sized sink down the wall might leave enough space for a combined shower/bath. Maybe.
How long is a bath? 2m? EDIT: About 1.7m.0 -
I would just reduce the size of the adjacent bedroom a little to make the bathroom bigger and fit what you want in it.4
Confirm your email address to Create Threads and Reply
Categories
- All Categories
- 354.1K Banking & Borrowing
- 254.3K Reduce Debt & Boost Income
- 455.3K Spending & Discounts
- 247.1K Work, Benefits & Business
- 603.7K Mortgages, Homes & Bills
- 178.3K Life & Family
- 261.2K Travel & Transport
- 1.5M Hobbies & Leisure
- 16.1K Discuss & Feedback
- 37.7K Read-Only Boards

