We’d like to remind Forumites to please avoid political debate on the Forum.
This is to keep it a safe and useful space for MoneySaving discussions. Threads that are – or become – political in nature may be removed in line with the Forum’s rules. Thank you for your understanding.
📨 Have you signed up to the Forum's new Email Digest yet? Get a selection of trending threads sent straight to your inbox daily, weekly or monthly!
Utility to Kitchen?

GrSunshine
Posts: 8 Forumite

*Addition* Thanks for all replies which were helpful but I think I will just contact planning. - sorry I don't know how to just do a reply so opted for this Addition.
To answer a few questions
The 'wall' between Kitchen and Dining Rooms is really only a partition wall and isn't structural
Regarding Indemnity, i'm not really bothered about that. It didn't cost much and I don't need it for mortgage reasons. As is said Solicitors......
House was built roughly early 1960's and link for previous planning and work from 1990 etc is here ** Deleted ** Solicitor had no luck in getting further paperwork from the planning dept.
There is already a sink in the Utility so water etc is already 'on tap' and there are lots of electric sockets along with a radiator.
I think my biggest concert is changing the door to a window.
Thanks again, I really do appreciate all replies but would ask that people remember we are not all abbreviation savvy and so I didn't understand them all :-)
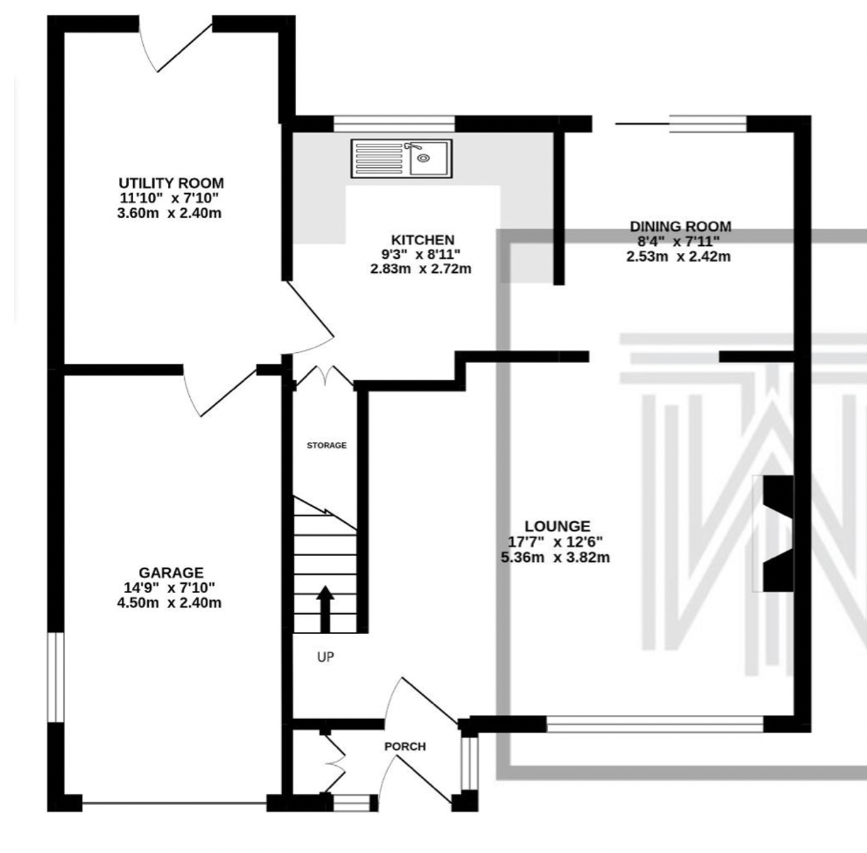
We are shortly moving home, downstairs floor plan attached.
The Utility room and garage were originally same length as rest of property until front and back were extended in 1990. Planning permission was approved and we have ref number along with proof of pass, although no paper work is available. We have had to take out an indemnity due to no paperwork. My intentions would be to open present kitchen and diner into a lounge diner, and move the kitchen into the Utility room. This would include blocking up the door and having a window in that wall. The garage, which is not used as a garage would eventually be split as a downstairs loo/utility room and work shop for hubby. My big problem is due to lack of paperwork I don't know if there are any restrictions on use and would the work require planning permission?

To answer a few questions
The 'wall' between Kitchen and Dining Rooms is really only a partition wall and isn't structural
Regarding Indemnity, i'm not really bothered about that. It didn't cost much and I don't need it for mortgage reasons. As is said Solicitors......
House was built roughly early 1960's and link for previous planning and work from 1990 etc is here ** Deleted ** Solicitor had no luck in getting further paperwork from the planning dept.
There is already a sink in the Utility so water etc is already 'on tap' and there are lots of electric sockets along with a radiator.
I think my biggest concert is changing the door to a window.
Thanks again, I really do appreciate all replies but would ask that people remember we are not all abbreviation savvy and so I didn't understand them all :-)
We are shortly moving home, downstairs floor plan attached.
The Utility room and garage were originally same length as rest of property until front and back were extended in 1990. Planning permission was approved and we have ref number along with proof of pass, although no paper work is available. We have had to take out an indemnity due to no paperwork. My intentions would be to open present kitchen and diner into a lounge diner, and move the kitchen into the Utility room. This would include blocking up the door and having a window in that wall. The garage, which is not used as a garage would eventually be split as a downstairs loo/utility room and work shop for hubby. My big problem is due to lack of paperwork I don't know if there are any restrictions on use and would the work require planning permission?

0
Comments
-
GrSunshine said:We are shortly moving home, downstairs floor plan attached.
The Utility room and garage were originally same length as rest of property until front and back were extended in 1990. Planning permission was approved and we have ref number along with proof of pass, although no paper work is available. We have had to take out an indemnity due to no paperwork. My intentions would be to open present kitchen and diner into a lounge diner, and move the kitchen into the Utility room. This would include blocking up the door and having a window in that wall. The garage, which is not used as a garage would eventually be split as a downstairs loo/utility room and work shop for hubby. My big problem is due to lack of paperwork I don't know if there are any restrictions on use and would the work require planning permission?The council will know what restrictions were imposed by previous planning consents, although contacting them will probably render the indemnity policy invalid.1990 is roughly in the middle of the period where minimum parking standards were imposed, so there is a fairly good chance conditions were attached to the consent requiring the garage to only be used for parking a car.Unfortunately 1990 is too far back for most councils to have full planning consent details on their website, so unless you are lucky, contacting the council will be the only way of finding out.1 -
You don't need any planning permission for internal changes to your house.I'm confused by what you meant by 'no paperwork'. You've said that you know the previous work has planning permission because you have the reference number. You wouldn't need an indemnity policy for no paperwork - the council has it!Or are you talking about building control? Either way, they won't be interested in what was done, as long as what you do is compliant. I've been on this board for 17 years and renovating for 24. Neither seen BC bothered on site or ever heard of enforcement. They'd need a court order - never going to happen, especially if you're making inprovements - ie. You need to be insulating that utility because I bet it isn't properly insulated.Everything that is supposed to be in heaven is already here on earth.
2 -
Section62 said:GrSunshine said:We are shortly moving home, downstairs floor plan attached.
The Utility room and garage were originally same length as rest of property until front and back were extended in 1990. Planning permission was approved and we have ref number along with proof of pass, although no paper work is available. We have had to take out an indemnity due to no paperwork. My intentions would be to open present kitchen and diner into a lounge diner, and move the kitchen into the Utility room. This would include blocking up the door and having a window in that wall. The garage, which is not used as a garage would eventually be split as a downstairs loo/utility room and work shop for hubby. My big problem is due to lack of paperwork I don't know if there are any restrictions on use and would the work require planning permission?The council will know what restrictions were imposed by previous planning consents, although contacting them will probably render the indemnity policy invalid.1990 is roughly in the middle of the period where minimum parking standards were imposed, so there is a fairly good chance conditions were attached to the consent requiring the garage to only be used for parking a car.Unfortunately 1990 is too far back for most councils to have full planning consent details on their website, so unless you are lucky, contacting the council will be the only way of finding out.Changes to the garage might need PP but they can talk directly to the planning office about that because the planning issue is a red herring!Everything that is supposed to be in heaven is already here on earth.
2 -
Doozergirl said:
I think you need to re-read the post. They have PP, it sounds like their solicitor was wrong to want an indemnity policy.Changes to the garage might need PP but they can talk directly to the planning office about that because the planning issue is a red herring!The way I read it, planning consent was given for something, but the detail of exactly what is uncertain due to the lack of paperwork. Hence the indemnity policy in case what was built isn't as per the consent. Not necessarily a sensible approach, but solicitors....The garage is proposed to be converted, and that may need consent if a previous consent had conditions requiring it to be used for parking.I agree the only way out of this is to talk to planning. There's a theoretical possibility something hasn't been built in accordance with planning consent but the risk of enforcement action has to be low, unless part of the building work is a lot more recent than believed.1 -
GrSunshine said: My intentions would be to open present kitchen and diner into a lounge diner, and move the kitchen into the Utility room.
Any language construct that forces such insanity in this case should be abandoned without regrets. –
Erik Aronesty, 2014
Treasure the moments that you have. Savour them for as long as you can for they will never come back again.1 -
Agree with comments by Doozergirl.
The reference number you have for the Planning Permission may well be an "old one" that simply means your LA doesn't have the Planning Permission viewable online, that doesn't mean you don't have paperwork.....our LA has microfiched Planning that is 10 years or older. Which just means you cannot see the Plans online. I can see no reason for an indemnity (unless you are missing telling us something important).
Just as a personal opinion, I would ask what your plan will be - are you saying you are getting rid of the utility so will have washing machine etc in your kitchen? Before you start knocking down walls and moving water rooms you should work out what you are actually going to do with the rest of the space because you may find that you have too much space in the wrong parts of the house. My opinion, as I said.1 -
Doozergirl said:You don't need any planning permission for internal changes to your house.I'm confused by what you meant by 'no paperwork'. You've said that you know the previous work has planning permission because you have the reference number. You wouldn't need an indemnity policy for no paperwork - the council has it!Or are you talking about building control? Either way, they won't be interested in what was done, as long as what you do is compliant. I've been on this board for 17 years and renovating for 24. Neither seen BC bothered on site or ever heard of enforcement. They'd need a court order - never going to happen, especially if you're making inprovements - ie. You need to be insulating that utility because I bet it isn't properly insulated.
Thanks for a very informative, educational post,
I though as you did but I was not 100% cert until I read you post,
OP, IMO, less space in utility is always ok and more space in the kitchen is better.
Thanks1 -
theonlywayisup said:
The reference number you have for the Planning Permission may well be an "old one" that simply means your LA doesn't have the Planning Permission viewable online, that doesn't mean you don't have paperwork.....our LA has microfiched Planning that is 10 years or older. Which just means you cannot see the Plans online. I can see no reason for an indemnity (unless you are missing telling us something important).Rather than getting a copy from the LPA, someone decided an indemnity policy was a better approach.The OP now needs to be cautious about approaching the LPA (prior to completion) if it is the case that their solicitor wanted the indemnity policy as a way of satisfying the lender there wasn't a planning issue.There is an alternative scenario in which the original planning documents have been lost or destroyed by the LPA. It shouldn't happen, but given the volume of applications LPAs deal with, the occasional loss of one file wouldn't be unexpected. If they've been microfiched or filmed then it would be very easy for hundreds of cases to be 'lost'.1 -
diystarter7 said:Doozergirl said:You don't need any planning permission for internal changes to your house.
I though as you did but I was not 100% cert until I read you post,
1 -
Section62 said:theonlywayisup said:
The reference number you have for the Planning Permission may well be an "old one" that simply means your LA doesn't have the Planning Permission viewable online, that doesn't mean you don't have paperwork.....our LA has microfiched Planning that is 10 years or older. Which just means you cannot see the Plans online. I can see no reason for an indemnity (unless you are missing telling us something important).Rather than getting a copy from the LPA, someone decided an indemnity policy was a better approach.The OP now needs to be cautious about approaching the LPA (prior to completion) if it is the case that their solicitor wanted the indemnity policy as a way of satisfying the lender there wasn't a planning issue.There is an alternative scenario in which the original planning documents have been lost or destroyed by the LPA. It shouldn't happen, but given the volume of applications LPAs deal with, the occasional loss of one file wouldn't be unexpected. If they've been microfiched or filmed then it would be very easy for hundreds of cases to be 'lost'.I still think this was a building control issue, if it was one at all.I missed the proposed garage conversion initially, you missed that the extensions were built in 1990, not the house. When was the house built, OP?Everything that is supposed to be in heaven is already here on earth.
1
Confirm your email address to Create Threads and Reply

Categories
- All Categories
- 352K Banking & Borrowing
- 253.5K Reduce Debt & Boost Income
- 454.2K Spending & Discounts
- 245K Work, Benefits & Business
- 600.6K Mortgages, Homes & Bills
- 177.4K Life & Family
- 258.8K Travel & Transport
- 1.5M Hobbies & Leisure
- 16.2K Discuss & Feedback
- 37.6K Read-Only Boards