We’d like to remind Forumites to please avoid political debate on the Forum.
This is to keep it a safe and useful space for MoneySaving discussions. Threads that are – or become – political in nature may be removed in line with the Forum’s rules. Thank you for your understanding.
PLEASE READ BEFORE POSTING: Hello Forumites! In order to help keep the Forum a useful, safe and friendly place for our users, discussions around non-MoneySaving matters are not permitted per the Forum rules. While we understand that mentioning house prices may sometimes be relevant to a user's specific MoneySaving situation, we ask that you please avoid veering into broad, general debates about the market, the economy and politics, as these can unfortunately lead to abusive or hateful behaviour. Threads that are found to have derailed into wider discussions may be removed. Users who repeatedly disregard this may have their Forum account banned. Please also avoid posting personally identifiable information, including links to your own online property listing which may reveal your address. Thank you for your understanding.
📨 Have you signed up to the Forum's new Email Digest yet? Get a selection of trending threads sent straight to your inbox daily, weekly or monthly!
The Forum now has a brand new text editor, adding a bunch of handy features to use when creating posts. Read more in our how-to guide
Sell house with planning permission or sell plot separately
jamieboot
Posts: 10 Forumite
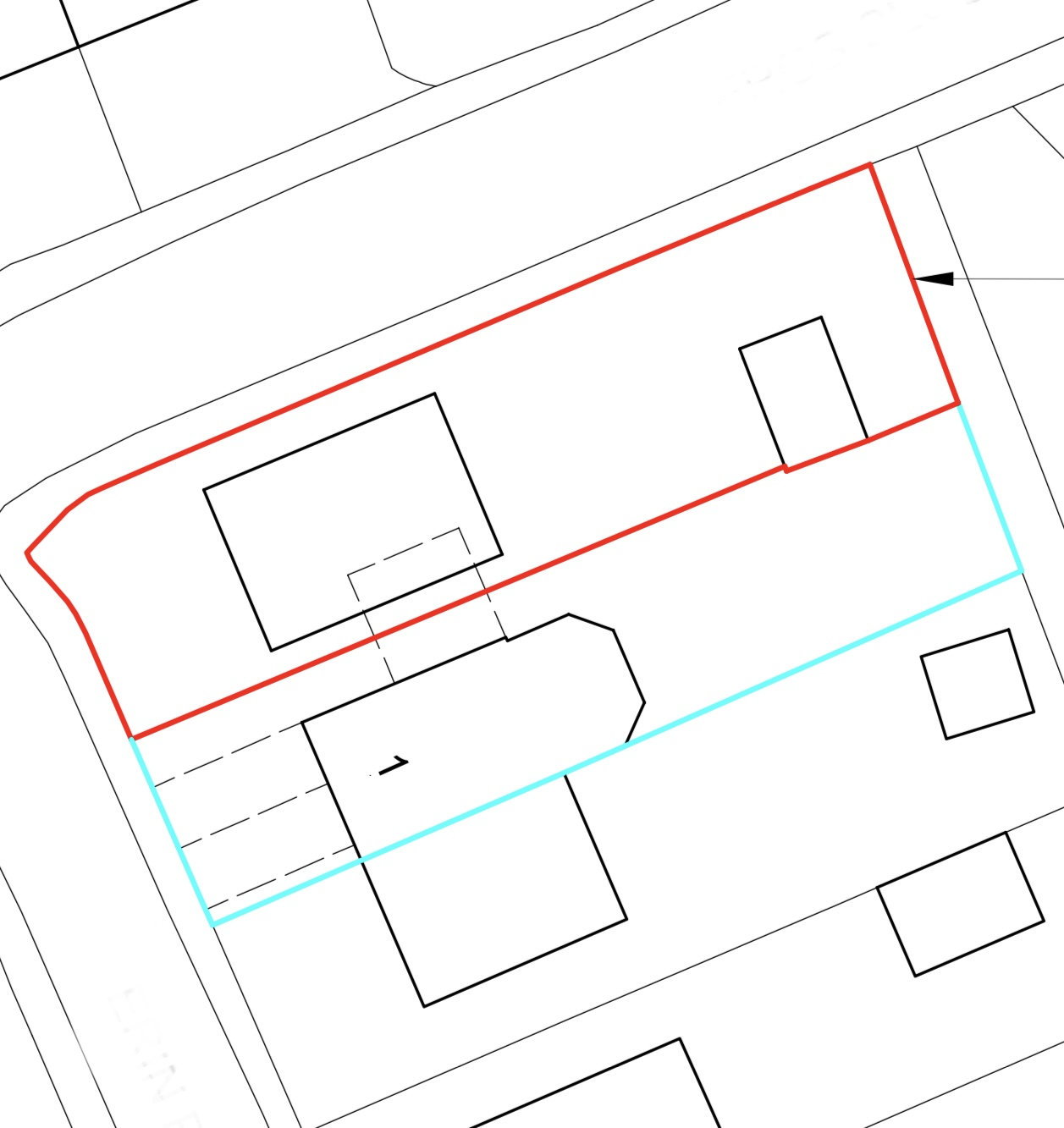
Hi there. We have a 1930’s semi corner plot and have been granted outline planning (all matters reserved) to
build a 4 bed detached house on the side of the plot, which will be worth around £400k
This will involve demolishing the side extension of
our house (housing the kitchen) and returning our house to its original footprint.
Having spoken to some land auctioneers I think that we could
get around 150k if we sell the land with planning permission, but would obviously need to spend money demolishing the side extension, landscaping and moving the kitchen back inside (20k?)
I am trying to decide if I am better off doing this or selling the
current house with planning to a developer/builder and having them do all the work.
*Current house as is with side extension worth circa £375k
*Current House taken back to original footprint on smaller plot circa £330k
How much do you think I could get selling the house with planning?
I guess I will make less this way but more likely to find a buyer as if splitting plots may be difficult to sell current house due to proposed building works on side plot?
Any other things I should think about?
thanks
Jamie
build a 4 bed detached house on the side of the plot, which will be worth around £400k
This will involve demolishing the side extension of
our house (housing the kitchen) and returning our house to its original footprint.
Having spoken to some land auctioneers I think that we could
get around 150k if we sell the land with planning permission, but would obviously need to spend money demolishing the side extension, landscaping and moving the kitchen back inside (20k?)
I am trying to decide if I am better off doing this or selling the
current house with planning to a developer/builder and having them do all the work.
*Current house as is with side extension worth circa £375k
*Current House taken back to original footprint on smaller plot circa £330k
How much do you think I could get selling the house with planning?
I guess I will make less this way but more likely to find a buyer as if splitting plots may be difficult to sell current house due to proposed building works on side plot?
Any other things I should think about?
thanks
Jamie

0
Comments
-
Have you asked any agents for their opinions? As you say, selling the existing house may be troublesome with the building site next door.0
-
Sell as a whole. Very attractive to a self builder to live in the old house while building the new, then sell the old house.
With such a rare opportunity, why don't you want to do that?1 -
Thanks Pro Dave- yes this is what I am thinking, although quite ready to sell yet. Any idea what the value of the house with planning would be based on above info?0
-
Would you consider selling the plot, but continuing to live in your current house until the new house is finished?
You'd have the inconvenience of construction going on next door, but your house would be more saleable once the new house is finished.
Plus you could make it a condition of the sale, that the builder/developer who buys the plot has to demolish your extension, landscape, and re-install your kitchen (according to precise plans - maybe drawn up by your architect).
That might work out more cost-effective than hiring your own builder to demolish the extension, landscape and re-install the kitchen.
0 -
Sell the plot and then if you want to stay.. maybe sell after 12 months0
-
My friend sold the land behind her house before she sold the house, and had a hellish time because of the 'drains'. Do make sure access etc is worked out and double check all measurements if you take this route.£216 saved 24 October 20140
-
It could be that whoever buys your house doesn't want to do what you've planned anyway.We looked at a house where the owner had planning permission for building another house on the plot. The vendor asked if we wanted to look at the plans, we said we weren't interested in building on the garden. We didn't buy that house, have been back past it since it sold, and in 5 years the purchaser hasn't built either, so looks like they were also not keen. Must have delighted the neighbours in the close who all objected to the permission being granted in the first place (I looked online at the application).If you do decide to stay in the house and sell the plot, can you make it a condition of sale that the new house is completed in XX time, otherwise if market situations become markedly worse, the developer may pause their project, and you could be stuck in the old house for years.
Make £2026 in 2026
Prolific £177.46, TCB £10.90, Everup £27.79, Roadkill £1.17
Total £217.32 10.7%Make £2025 in 2025 Total £2241.23/£2025 110.7%
Prolific £1062.50, Octopoints £6.64, TCB £492.05, Tesco Clubcard challenges £89.90, Misc Sales £321, Airtime £70, Shopmium £53.06, Everup £106.08, Zopa CB £30, Misc survey £10
Make £2024 in 2024 Total £1410/£2024 70%Make £2023 in 2023 Total: £2606.33/£2023 128.8%0
Confirm your email address to Create Threads and Reply
Categories
- All Categories
- 353.9K Banking & Borrowing
- 254.3K Reduce Debt & Boost Income
- 455.2K Spending & Discounts
- 247K Work, Benefits & Business
- 603.6K Mortgages, Homes & Bills
- 178.3K Life & Family
- 261.1K Travel & Transport
- 1.5M Hobbies & Leisure
- 16.1K Discuss & Feedback
- 37.7K Read-Only Boards
