We’d like to remind Forumites to please avoid political debate on the Forum.
This is to keep it a safe and useful space for MoneySaving discussions. Threads that are – or become – political in nature may be removed in line with the Forum’s rules. Thank you for your understanding.
📨 Have you signed up to the Forum's new Email Digest yet? Get a selection of trending threads sent straight to your inbox daily, weekly or monthly!
The Forum now has a brand new text editor, adding a bunch of handy features to use when creating posts. Read more in our how-to guide
Bathroom help
GlasgowExpat2
Posts: 276 Forumite
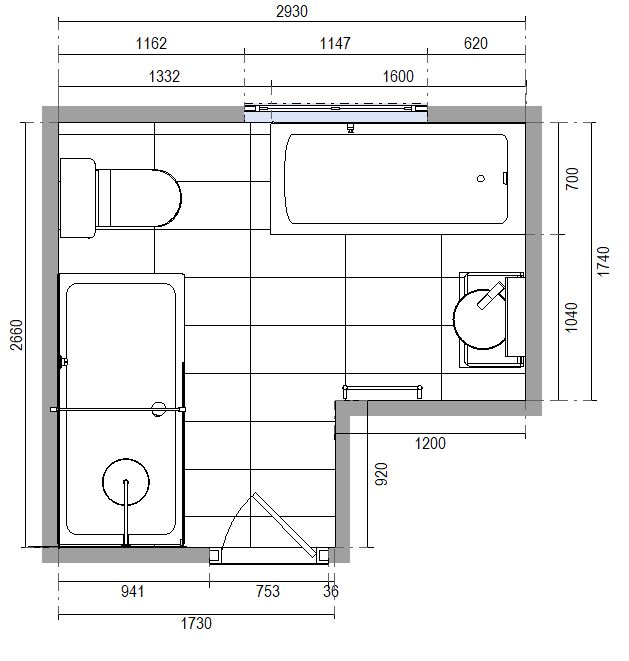
New bathroom is due to be fitted next week (first floor flat) and discovered a problem. Currently there is a bathroom with a toilet in the corner plus a separate toilet. The plan was to remove the remove the separate toilet and rearrange as picture 1. However, we’ve discovered that there is an extractor pipe in the short wall (marked on the second picture) which runs from my downstairs neighbour to the roof.
If the wall wall has to stay will need to redesign the bathroom layout as there isn’t enough room between the end of the bath and the wall to get to the toilet. I’ve drafted the attached but can anyone suggest any other options. Ideally I don’t want the vanity unit under the window as I want to put a mirror above it.


If the wall wall has to stay will need to redesign the bathroom layout as there isn’t enough room between the end of the bath and the wall to get to the toilet. I’ve drafted the attached but can anyone suggest any other options. Ideally I don’t want the vanity unit under the window as I want to put a mirror above it.


0
Comments
-
Where's the pipe? In the wall that is left? Whereabouts?Everything that is supposed to be in heaven is already here on earth.
0 -
The obvious solution is a smaller shower tray.Nothing much wrong with your suggested layout but I'd opt for a larger vanity in a big room. 600mm is out of proportion. A squarer shower of 900-1000mm and either put the towel rail behind the door or have a proper radiator (that actually heats the room) under the window.Everything that is supposed to be in heaven is already here on earth.
1 -
Yes, the right hand side as you look from the door.Doozergirl said:Where's the pipe? In the wall that is left? Whereabouts?0 -
The wall the vanity unit is on is only 1740mm so I don’t think there is enough room for a bigger unit if the shower is 800mm.Doozergirl said:The obvious solution is a smaller shower tray.Nothing much wrong with your suggested layout but I'd opt for a larger vanity in a big room. 600mm is out of proportion. A squarer shower of 900-1000mm and either put the towel rail behind the door or have a proper radiator (that actually heats the room) under the window.
There isn’t room behind the door. Is there enough room to put it to the right of the window?0 -
You've lost me!GlasgowExpat2 said:
Yes, the right hand side as you look from the door.Doozergirl said:Where's the pipe? In the wall that is left? Whereabouts?Everything that is supposed to be in heaven is already here on earth.
0 -
Sorry. The pipe is inside the wall that is left (marked in yellow). We think it’s the right hand end of the wall. Hope that’s clearer.Doozergirl said:
You've lost me!GlasgowExpat2 said:
Yes, the right hand side as you look from the door.Doozergirl said:Where's the pipe? In the wall that is left? Whereabouts?1 -
Reduce the length of the bath is an obvious one
Thrifty Till 50 Then Spend Till the End
You can please some of the people some of the time, all of the people some of the time, some of the people all of the time but you can never please all of the people all of the time0 -
Just looked at this again.Can you put the shower where the bath is. Put the vanity unit on the empty wall under the window. Towel rail on the wall.Move the bath to where the shower, vanity unit and towel rail is.Thrifty Till 50 Then Spend Till the End
You can please some of the people some of the time, all of the people some of the time, some of the people all of the time but you can never please all of the people all of the time0 -
GlasgowExpat2 said:
Yes, the right hand side as you look from the door.Doozergirl said:Where's the pipe? In the wall that is left? Whereabouts?
Do you mean in the yellow block marked WALL which is on the LEFT as you look from the door, but that it is situated in the RIGHT hand side of said wall?GlasgowExpat2 said:
Sorry. The pipe is inside the wall that is left (marked in yellow). We think it’s the right hand end of the wall. Hope that’s clearer.Doozergirl said:
You've lost me!GlasgowExpat2 said:
Yes, the right hand side as you look from the door.Doozergirl said:Where's the pipe? In the wall that is left? Whereabouts?
0 -
That’s correcttheonlywayisup said:GlasgowExpat2 said:
Yes, the right hand side as you look from the door.Doozergirl said:Where's the pipe? In the wall that is left? Whereabouts?
Do you mean in the yellow block marked WALL which is on the LEFT as you look from the door, but that it is situated in the RIGHT hand side of said wall?GlasgowExpat2 said:
Sorry. The pipe is inside the wall that is left (marked in yellow). We think it’s the right hand end of the wall. Hope that’s clearer.Doozergirl said:
You've lost me!GlasgowExpat2 said:
Yes, the right hand side as you look from the door.Doozergirl said:Where's the pipe? In the wall that is left? Whereabouts?0
Confirm your email address to Create Threads and Reply
Categories
- All Categories
- 354.3K Banking & Borrowing
- 254.4K Reduce Debt & Boost Income
- 455.4K Spending & Discounts
- 247.3K Work, Benefits & Business
- 604K Mortgages, Homes & Bills
- 178.4K Life & Family
- 261.5K Travel & Transport
- 1.5M Hobbies & Leisure
- 16K Discuss & Feedback
- 37.7K Read-Only Boards
