We’d like to remind Forumites to please avoid political debate on the Forum.
This is to keep it a safe and useful space for MoneySaving discussions. Threads that are – or become – political in nature may be removed in line with the Forum’s rules. Thank you for your understanding.
PLEASE READ BEFORE POSTING: Hello Forumites! In order to help keep the Forum a useful, safe and friendly place for our users, discussions around non-MoneySaving matters are not permitted per the Forum rules. While we understand that mentioning house prices may sometimes be relevant to a user's specific MoneySaving situation, we ask that you please avoid veering into broad, general debates about the market, the economy and politics, as these can unfortunately lead to abusive or hateful behaviour. Threads that are found to have derailed into wider discussions may be removed. Users who repeatedly disregard this may have their Forum account banned. Please also avoid posting personally identifiable information, including links to your own online property listing which may reveal your address. Thank you for your understanding.
📨 Have you signed up to the Forum's new Email Digest yet? Get a selection of trending threads sent straight to your inbox daily, weekly or monthly!
The Forum now has a brand new text editor, adding a bunch of handy features to use when creating posts. Read more in our how-to guide
Problem with new build , Any advice appreciated
JonW81
Posts: 2 Newbie
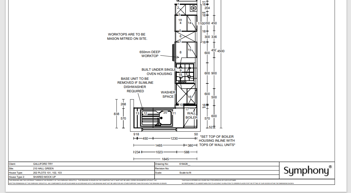
Hi, Me and my wife purchased a new build shared ownership (40%) house a year ago. The kitchen doesn't match the plans for the house or the house we viewed (identical). We are basically missing two double kitchen units (below and above) and worktop.
Vistry have accepted they are at fault but have come back with a redesign with just does not suit the kitchen space.
Do I have a leg to stand on here or do I just have to accept the redesign which I can tell has been done for vistrys own convenience.
This is how the Kitchen should be numbers 4 and 11 are missing

Vistry have accepted they are at fault but have come back with a redesign with just does not suit the kitchen space.
Do I have a leg to stand on here or do I just have to accept the redesign which I can tell has been done for vistrys own convenience.
This is how the Kitchen should be numbers 4 and 11 are missing

0
Comments
-

And this is what they have proposed to do, 450mm of worktop and cupboards surrounded by 2 larder units0 -
You're entitled to whatever your contract said you're meant to get. Which almost certainly gives them leeway for minor changes to the spec like this.0
-
I’m amazed you managed to get a plan from Vistry. We bought with Bovis 5 years ago and they wouldn’t give us any of them.I think it comes down to how much it will annoy you if it isn’t done properly. I’m sure you could push them to do it properly but it’s so hard to get them to do anything. We’ve still got a few bits that I just gave up on in the end but they did sort a lot of the issues eventually.0
-
speak to the housing asociationDon't put your trust into an Experian score - it is not a number any bank will ever use & it is generally a waste of money to purchase it. They are also selling you insurance you dont need.0
Confirm your email address to Create Threads and Reply
Categories
- All Categories
- 354.4K Banking & Borrowing
- 254.4K Reduce Debt & Boost Income
- 455.4K Spending & Discounts
- 247.3K Work, Benefits & Business
- 604K Mortgages, Homes & Bills
- 178.4K Life & Family
- 261.5K Travel & Transport
- 1.5M Hobbies & Leisure
- 16K Discuss & Feedback
- 37.7K Read-Only Boards
