We’d like to remind Forumites to please avoid political debate on the Forum.
This is to keep it a safe and useful space for MoneySaving discussions. Threads that are – or become – political in nature may be removed in line with the Forum’s rules. Thank you for your understanding.
PLEASE READ BEFORE POSTING: Hello Forumites! In order to help keep the Forum a useful, safe and friendly place for our users, discussions around non-MoneySaving matters are not permitted per the Forum rules. While we understand that mentioning house prices may sometimes be relevant to a user's specific MoneySaving situation, we ask that you please avoid veering into broad, general debates about the market, the economy and politics, as these can unfortunately lead to abusive or hateful behaviour. Threads that are found to have derailed into wider discussions may be removed. Users who repeatedly disregard this may have their Forum account banned. Please also avoid posting personally identifiable information, including links to your own online property listing which may reveal your address. Thank you for your understanding.
📨 Have you signed up to the Forum's new Email Digest yet? Get a selection of trending threads sent straight to your inbox daily, weekly or monthly!
New build floor plan difference

samps1973
Posts: 125 Forumite


Hi,
As some of you may know I am purchasing a new build property. There has been delays with at least 15 enquiries going backwards and forwards but nearly at the signing contract stage.
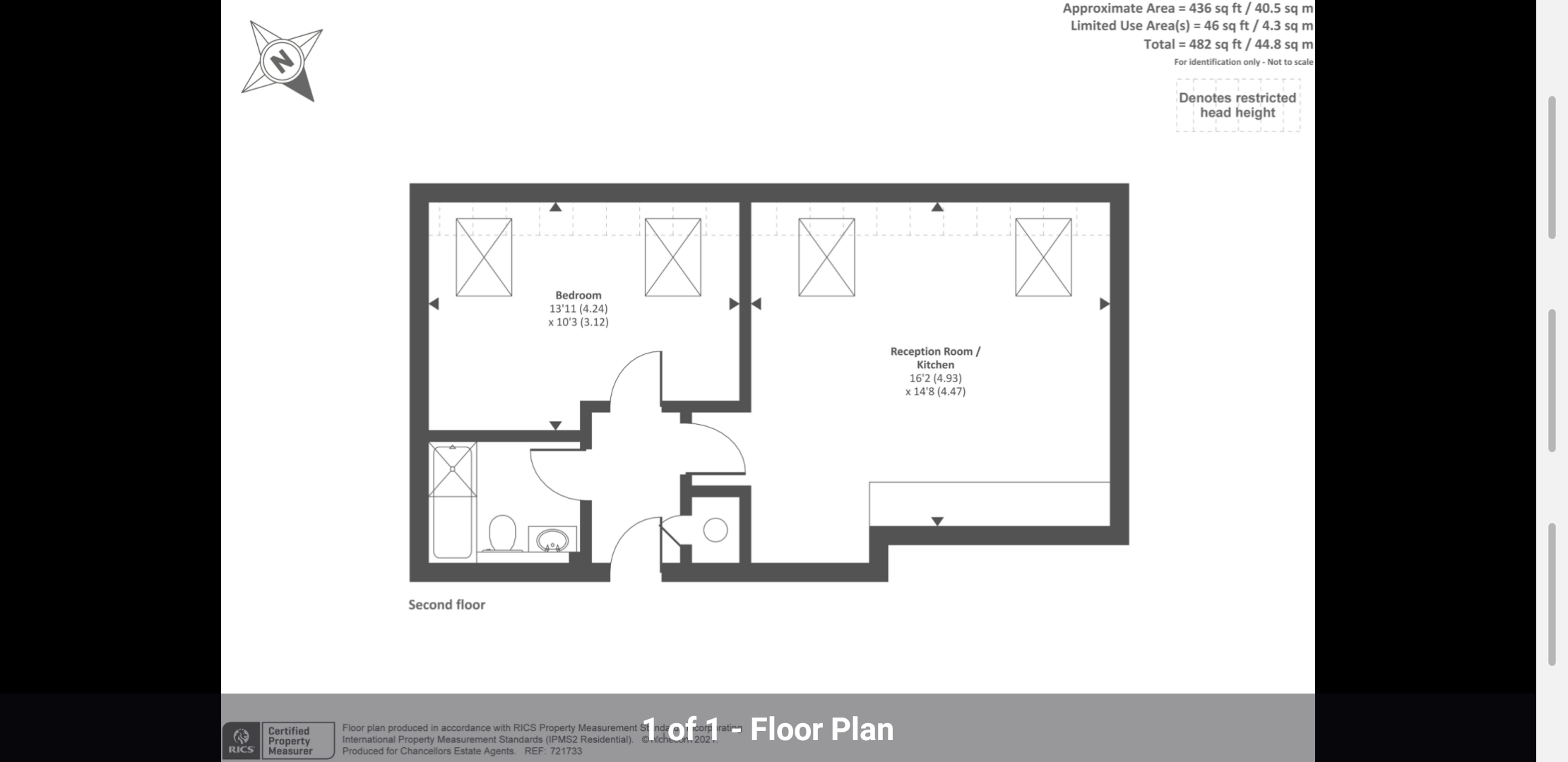
Over the christmas period I had another look at the advert on rightmove and noticed the floor plan differs to the actual flat. I'm not sure who do the actual plans so not sure if it's a mistake by the EA or the builder saving time or money.
If the plans are correct I'm assuming the floor space is now smaller as the wall is flat. If the original plan was for a wardrobe there will be a cavity between the bathroom and bedroom if that makes sense.
I've sent an email to my solicitor but I doubt they can do anything about it.
What's the best way to deal with it?
If the floor space is less then I'm assuming that will effect the saleabilty and future price of the property and also I dont feel I'm buying what is advertised on rightmove.
If you look at the red line I drew on the floorplan you can see the wall in the bedroom is flat and I remember it being flat at the viewing.
Something I have learned is nobody wants to be responsible for anything and passes the buck or they are constantly on anual leave😏🙂
Maybe I'm just over thinking things.
Heres the difference


As some of you may know I am purchasing a new build property. There has been delays with at least 15 enquiries going backwards and forwards but nearly at the signing contract stage.
Over the christmas period I had another look at the advert on rightmove and noticed the floor plan differs to the actual flat. I'm not sure who do the actual plans so not sure if it's a mistake by the EA or the builder saving time or money.
If the plans are correct I'm assuming the floor space is now smaller as the wall is flat. If the original plan was for a wardrobe there will be a cavity between the bathroom and bedroom if that makes sense.
I've sent an email to my solicitor but I doubt they can do anything about it.
What's the best way to deal with it?
If the floor space is less then I'm assuming that will effect the saleabilty and future price of the property and also I dont feel I'm buying what is advertised on rightmove.
If you look at the red line I drew on the floorplan you can see the wall in the bedroom is flat and I remember it being flat at the viewing.
Something I have learned is nobody wants to be responsible for anything and passes the buck or they are constantly on anual leave😏🙂
Maybe I'm just over thinking things.
Heres the difference


0
Comments
-
What video?0
-
Can't tell from the video, the camera never turns fully back to be able to see the whole wall next to the door.1
-
I would seek out the original planning application and cross reference the drawings between the two as a start. If the original ones match what the physical situation is then you have your answer.
If both match the non edited drawing, then I'd be asking for clarity and do not sign the contract. Regarding the overall floor space, it should be the same as long as the external walls are as they should be1 -
@The_Real_Cheddar_Bob
Do you know how to obtain the original drawings or will the solicitor have these? I'm unable to contact the developer and the EA is useless.
Thank you0 -
@TadleyBaggie
Thanks for letting me know that, I'll delete the reference to the video so people dont get confused.0 -
I expect the answer is that nothing has ever changed, and all that's happened is whoever drew that plan made a mistake. Makes no real difference to value or marketability. You're buying what you viewed, what the surveyors have valued, etc.2
-
I am not convinced the video and plans don't show the same thing. The bathroom door looks like it opens tight against the bathroom wall, but then there is a little bit of lobby wall between the bathroom door and the bedroom door. You would get both of those things if the plan is right, but only one or the other if the wall was where you mark in red.
But a banker, engaged at enormous expense,Had the whole of their cash in his care.
Lewis Carroll1 -
Hi @theoretica
I'll post the video here again incase someone wants to see it. The flat starts about halfway up the time bar.https://youtu.be/b302wBiXsuc
I noticed the same thing as you. There is a gap in the lobby between the bathroom door wall and the bedroom door wall, so in theory the drawing should be as it shows on the website. But as you go into the bedroom, the wall doesnt go around the corner, its flat from the bedroom door all the way along. The wall has a light switch and as you can see in the video a double socket too but the video doesnt show the light switch on the wall, what I'm trying to say is the room is a rectangle and theres no recess. There must be a cavity behind the plaster board in the bedroom. If I could get in there I'd get the measuring tape out 🙂
It would be handy if there was a space as I could fit a wardrobe in that space.
As @Slithery says I'll try and get the drawing from the council.
0 -
Hi,
You are buying the flat as it is, the plan and video will not be part of your contract, nor will any plans submitted to the council.
The only thing that matters is the reality of what is there and the words (and any plan) in the lease.
At most, you will discover that the estate agent was wrong; estate agents are not known for getting things right all the time so that won't be a surprise to anyone and you have no practical comeback (you might get some token gesture if you complain to them though).
If it is important to you then go and look at it again and check. If it is not what you want and really important to you then you have the option of pulling out or negotiating a price reduction (although I don't rate your chances of success on that!).3
Confirm your email address to Create Threads and Reply

Categories
- All Categories
- 352.1K Banking & Borrowing
- 253.6K Reduce Debt & Boost Income
- 454.2K Spending & Discounts
- 245.1K Work, Benefits & Business
- 600.8K Mortgages, Homes & Bills
- 177.5K Life & Family
- 258.9K Travel & Transport
- 1.5M Hobbies & Leisure
- 16.1K Discuss & Feedback
- 37.6K Read-Only Boards