We’d like to remind Forumites to please avoid political debate on the Forum.
This is to keep it a safe and useful space for MoneySaving discussions. Threads that are – or become – political in nature may be removed in line with the Forum’s rules. Thank you for your understanding.
📨 Have you signed up to the Forum's new Email Digest yet? Get a selection of trending threads sent straight to your inbox daily, weekly or monthly!
Extension to already extended house
Comments
- 
            Next time remind to print a floorplan directly off rightmove rather than use all my printer ink!
 two options:  Everything that is supposed to be in heaven is already here on earth. Everything that is supposed to be in heaven is already here on earth.
 2
- 
            I've left the kitchen at the back but there's a choice of three rooms there.Everything that is supposed to be in heaven is already here on earth.
 0
- 
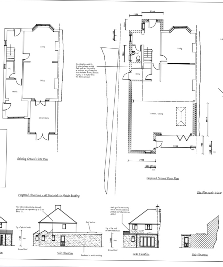
            I’m keen to keep the separate living room. The front reception room will become a family room/4th bedroom (I frequently have family to stay) and I would want a separate sitting room which we have in our current house and it works for us (son often watches tv in there while I cook with music/tv on in kitchen). I see what you’re saying re high cost for not much benefit. It would make sense to turn the old kitchen into utility and bigger shower room but at the moment I can’t see how I could do that without making an open plan kitchen/diner/sitting room. Will have a rethink! Also re the roof - it will probably need replacing anyway as it’s flat - see pic. I’d like to add a roof lantern if poss...
 Haven’t done a total budget yet but have around 50-60k to play with. 0 0
- 
            Sorry - your drawings hadn't loaded on my phone before I replied above...The key point is I am keen to keep a separate living room at the rear. (Also btw the property isn't on rightmove yet and i've already used a fair bit of ink myself printing the photo i took of the printed details handed to me by the agent...!)0
- 
            You didn't answer about taking out the side wall and corner of the house. If you are, it's unfeasibly expensive engineering. If you aren't, you don't have the space in the proposed side extensions for a utility that isn't a corridor. £50k doesn't stretch very far when there's a new kitchen involved.How often do family stay that you need to compromise a downstairs room?If you want another separate lounge, turn the present kitchen into a lounge. Utility door goes to the left rather than the rear and put doors on the present kitchen into the new kitchen/diner. It doesn't need a corridor.If they stay that often then swap the utility and shower room on my
 plan 2 and you've effectively created an ensuite.You could even squidge a tiny loo off the hall, utility off the kitchen and a little ensuite to the back. It really does depend on how often that room is used.Cheaper, better value for money and a much more flexible layout.Everything that is supposed to be in heaven is already here on earth.
 0
- 
            Can you not get a paint app for phones/tablets. Save that ink.You can't really fit a car in that Garage so you may as well use 50% of it for a shower/utility.
 0
- 
            If it's too expensive I won't take out the side wall and kitchen corner. I just thought it would make sense to square off and make the kitchen bigger and a regular shape (and could make it more saleable) - but I get that it's disproportionately expensive and complex. I like your idea of turning the kitchen into a lounge - but i was going to keep the kitchen units along the right wall and get my friend who has a kitchen business to replace the doors to save some money. Also the existing 'living room' has a chimney breast, fireplace, original cornices etc - and I would like to preserve these features and install a wood burner and have a more modern kitchen. I've had another think and come up with this, which leaves the extension wall and side walls relatively intact. Would just need to install 2 x doors in the RH exterior wall (or even one door and have an internal door between the utility and shower room). Would this be feasible? It leaves 'dead space' where the old kitchen was but I have a large shelving unit I had made for books etc which could go where the boiler and shower are currently. The new rear garage door could actually be level with the front wall of the shower room. 
 0
- 
            I don't think it's big enough.
 Counting bricks on the back kitchen wall by the manhole, I measure the width of that wall at 1.46m. Take off cavity construction and plastering and you're left with about 1.1m internally. Insert a kitchen unit and a worktop and you've got less than 50cm of walking space. It's unusable like that. A shower room could fit if it were longer than 2.4m internally with the door in the middle of the room but you're currently trying to access it from directly under the staircase, which isn't going to work.
 Cost is an issue here again. Small extensions cost huge amounts of money because there is no economy of scale and you are always going to have to meet the building regulations.
 I don't know if you're ever planning to move, but resale value often plays a part for a lot of people.
 You can use cornice, make use of chimney breasts etc in a modern kitchen too, in fact, they can look stunning as it introduces some character.Everything that is supposed to be in heaven is already here on earth.
 0
- 
            Which room is unusable? The utility?0
- 
            Some friends live a few doors down and have done this  0 0
This discussion has been closed.
            Confirm your email address to Create Threads and Reply
 
Categories
- All Categories
- 352.2K Banking & Borrowing
- 253.6K Reduce Debt & Boost Income
- 454.3K Spending & Discounts
- 245.3K Work, Benefits & Business
- 601K Mortgages, Homes & Bills
- 177.5K Life & Family
- 259.1K Travel & Transport
- 1.5M Hobbies & Leisure
- 16K Discuss & Feedback
- 37.7K Read-Only Boards

 
          
         
 
         
